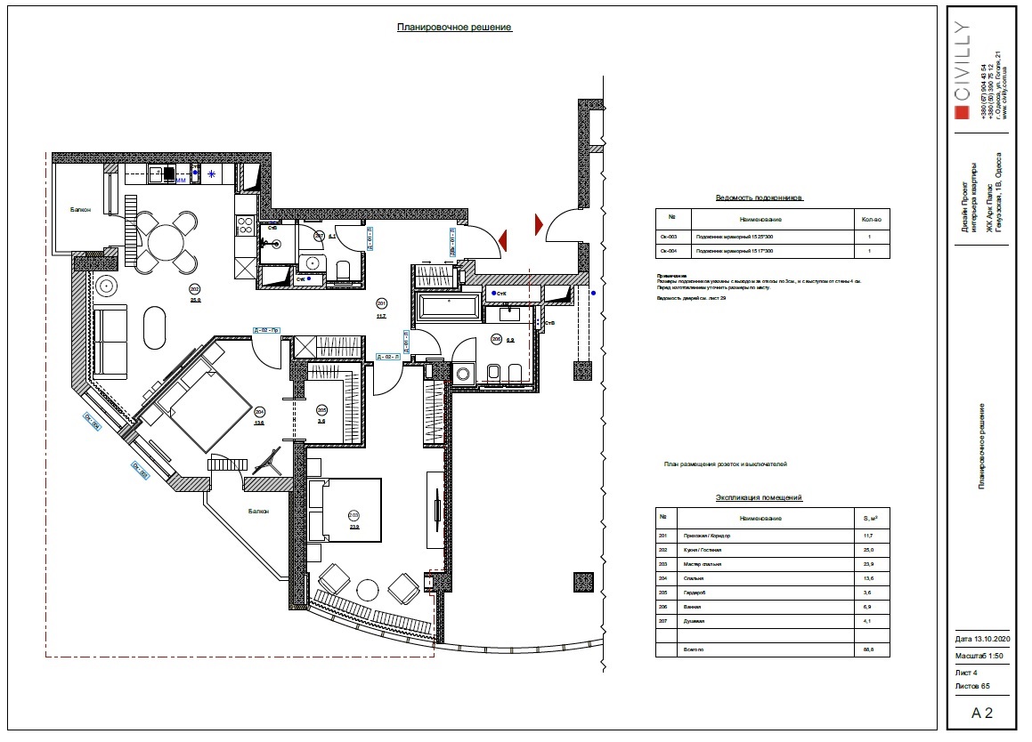
Дизайн квартиры в стиле французской классики. Одесса, ЖК «Акр Палас».

  • Тип проекта:
    Квартира
  • Площадь:
    90 ㎡
  • Стиль:
    Французская классика
  • Место:
    Одесса, ЖК Арк Палас

 

 

 

 

 

 

 

 

Понравился наш проект?
Нажми на иконку и поделись этой страницей в социальных сетях: