
Замеры

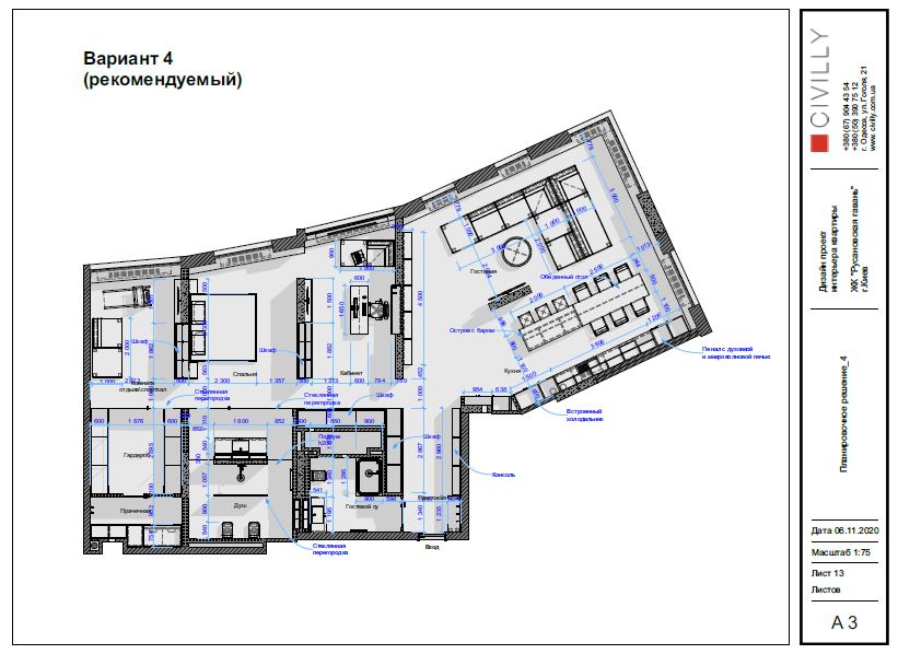
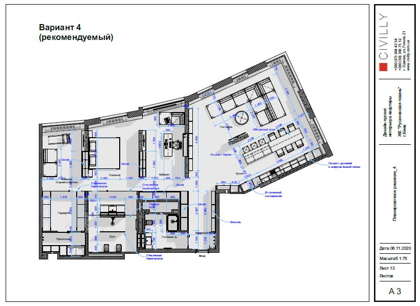
Планировочное решение
Визуализации предложенного планировочного решения

Входная группа

Кухня-столовая

Пространство для приёма гостей: барная стойка и обеденный стол

Кабинет

Мастер-спальня

Мастер-спальня и мастер с/у

Мастер-с/у

Мастер-с/у

Гостевой с/у
Понравился наш проект?
Нажми на иконку и поделись этой страницей в социальных сетях: