Утонченная квартира на берегу Днепра в Киеве, ЖК Русановская гавань. Идеальный аскетизм.

  • Тип проекта:
    Квартира
  • Площадь:
    160 ㎡
  • Стиль:
    Минимализм
  • Место:
    Киев, ЖК Русановская Гавань

 

Замеры

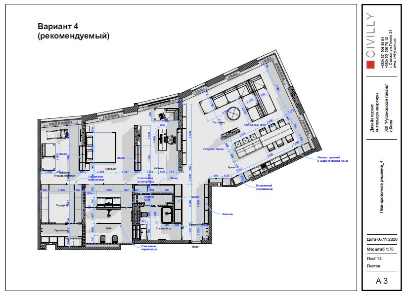
Планировочное решение

Визуализации предложенного планировочного решения

 

Входная группа

Кухня-столовая

 Пространство для приёма гостей: барная стойка и обеденный стол

Кабинет

Мастер-спальня

Мастер-спальня и мастер с/у

Мастер-с/у

Мастер-с/у

Гостевой с/у

Понравился наш проект?
Нажми на иконку и поделись этой страницей в социальных сетях: