Идеальное решение для небольшой квартиры – лаконичный минимализм, учитывающий все необходимое для комфорта и исключающий излишние детали, загромождающие интерьер. Именно так была обустроена эта небольшая, но уютная одесская квартира-студия, площадью в 40 кв.м, расположенная недалеко от моря.
Это – так называемая «квартира выходного дня», а значит, хозяева будут останавливаться в ней, приезжая на отдых или отправляясь в командировки. Соответственно, в ней не должно быть ничего лишнего, однако она должна быть уютной, функциональной и максимально простой в уходе. Всего этого удалось добиться нашим дизайнерам при разработке интерьера.

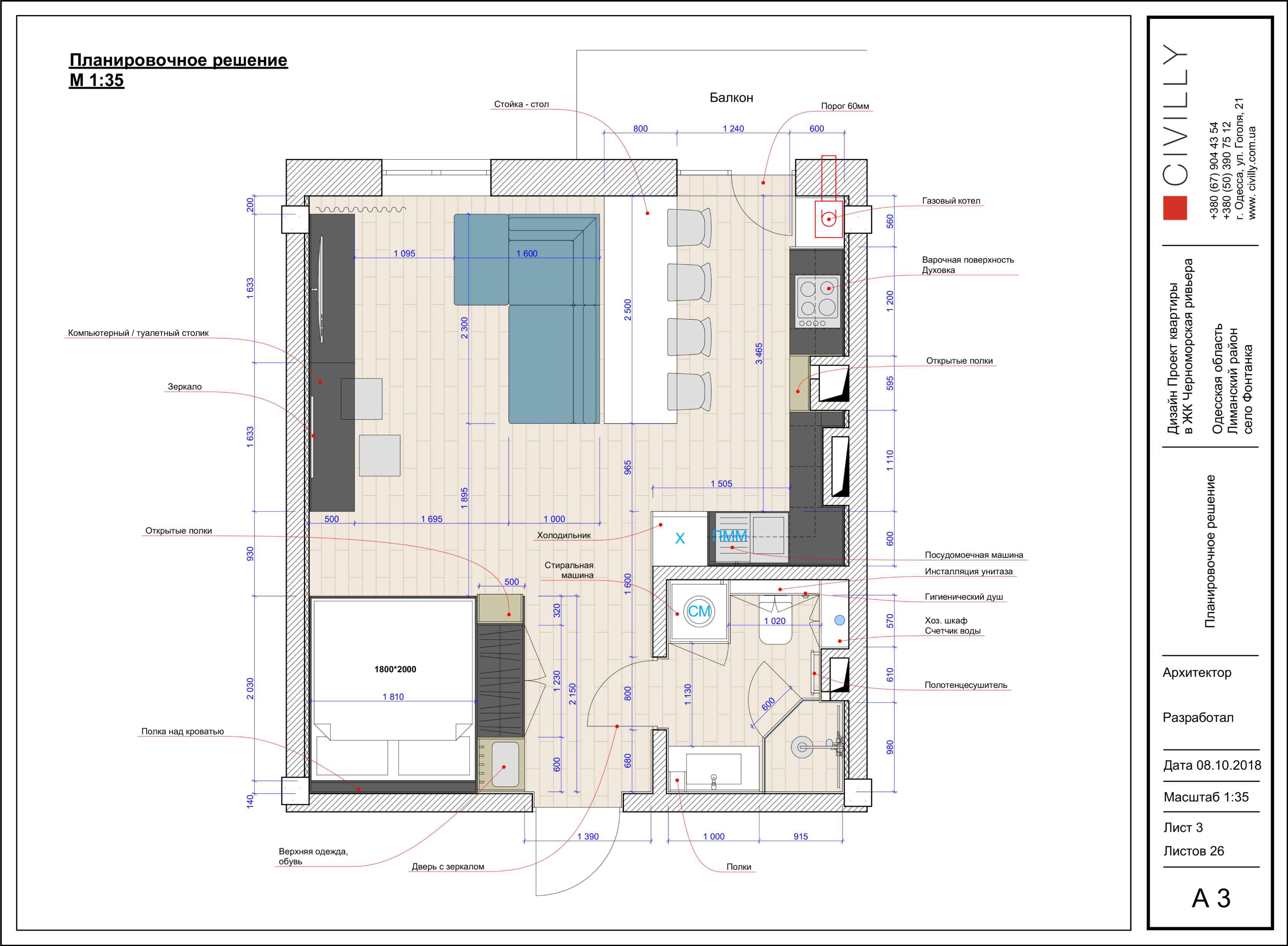
Итак, наша небольшая квартира-студия, можно сказать, состоит из кухни, обеденной зоны, зоны отдыха, спальной зоны, гардероба и санузла. Кухня, несмотря на ее внешне немалые габариты, ограничила дизайнеров в планировке из-за многочисленных вентиляционных каналов, прямо за ней. Практически все свободное пространство нижних шкафов занято встраиваемой бытовой техникой, которая удачно «спряталась» за стильными нейтрально-белыми фасадами.
В качестве дополнительного пространства для хранения кухонной (и не только) утвари предусмотрены ящики под потолком. В одном из них «спрячется» бойлер, а остальные послужат очень полезным местом для хранения вещей, которыми хозяева пользуются не так часто. Благодаря облицовке панелями ДСП, отсутствуют щели и неидеальные стыки между мебелью и стенами, крупной бытовой техникой: кухня смотрится целостно, гармонично и как бы продолжается до входной двери.
Ограниченность пространства в студии не позволяет поставить традиционный обеденный стол со стульями. Отличным и многофункциональным решением в данном случае стал лаконичный кухонный полуостров, за которым комфортно усядется семья из четырех человек. Во время же приготовления пищи он послужит еще и дополнительной рабочей поверхностью для хозяйки и ее помощников.
Стильный диван стал изюминкой – цветовым акцентом в интерьере, напоминающем о близости моря. На нем уютно расположится вся семья для вечернего отдыха или просмотра любимого фильма. А после, его можно разложить, получив еще два полноценных спальных места. Приятный бонус – еще немного дополнительного пространства в боковом блоке диванчика – «полуострове», которое подойдет для хранения домашнего текстиля и других вещей.
Уникальным является дизайнерское решение в обустройстве зоны для сна. Она выделена из общей зоны отдыха и прихожей необычным дизайном - таким себе мебельным кубом – гибридом стены, кровати и гардеробного шкафа. С одной стороны, он ограждает спальное место от прихожей, давая возможность после насыщенного дня уединиться, спрятаться в уютном уголке и по-настоящему расслабиться. С другой стороны, та самая стенка имеет функциональное назначение и служит в качестве гардероба.
Еще одной изюминкой интерьера можно назвать ультрасовременную межкомнатную дверь в санузел. Прелесть ее в полном отсутствии наличников – дверь находится четко в одной плоскости со стеной. А благодаря зеркальному покрытию она еще и служит зеркалом в прихожей, не только визуально увеличивая пространство, но и давая возможность перед выходом из дома взглянуть на свое отражение в полный рост.
Сам санузел также отличается простым и лаконичным, однако, не менее функциональным дизайном. Несмотря на небольшую площадь помещения, благодаря светлым нейтральным оттенкам и прозрачной душевой кабине, нет ощущения перегруженности интерьера. В небольшие, но вместительные шкафчики поместится все необходимое, а в угловом шкафу «спрячется» стиральная машинка. Изюминкой интерьера является плитка под бело-серый мрамор Calacatta, придающая комнате изысканности.
Общий дизайн квартиры выдержан в стиле минимализм и выполнен в элегантных нейтральных цветах, чистота форм подчеркнута игрой контрастных цветов. Наши дизайнеры использовали минимум декора и цветовых акцентов, оставив хозяевам возможность обживаться новыми вещами, которыми впоследствии и будет разбавлена нейтральная цветовая гамма и декорирован интерьер.
Хочешь по-настоящему стильный интерьер квартиры? Звони нам!