Интерьерный дизайн отеля с выразительной морской стилистикой: свет, воздух и фактуры побережья. Мы соединили белоснежные плоскости, «солнечные» песочные оттенки и глубину морских нюансов, дополнив их натуральными материалами, устойчивыми к прибрежному климату и высокой проходимости.
Мы разработали функционально-чёткую структуру пространства: парадное лобби с ресепшеном и зонами ожидания, ресторан и бар с выходом на террасы, номерной фонд разных категорий, SPA/бассейновую зону и променад.
Эстетика — белый + песочный + морские синие акценты, много естественного света, текстуры дерева и камня. В отделке применены долговечные материалы: керамогранит с противоскользящими характеристиками в активных зонах, стойкие к ультрафиолету покрытия, латунные/нержавеющие детали фурнитуры, ткани с влаго- и грязеотталкивающей пропиткой.
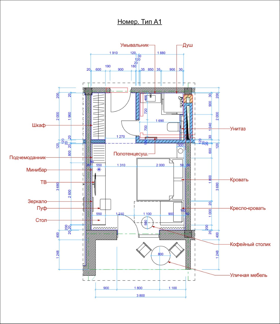
В номерах — лёгкие «средиземноморские» интерьеры: голубые и индиговые акценты, светлые деревянные панели, встроенное хранение «до потолка», мягкие изголовья, blackout-текстиль и локальные бра для камерности. В лобби — островные стойки ресепшена, модульные диваны, акцентные светильники и композиции из натуральных фактур (ротанг, канаты, плетёные элементы) в современном прочтении.
Свет выстроен по сценариям: равномерная база, направленные акценты на арт-объектах/витринах, контурная подсветка карнизов, тёплая вечерняя сцена террас. Навигация выполнена в единой графике: пиктограммы, номера этажей/комнат, тактильные указатели у ключевых развилок.
Мебель для открытых площадок — уличные коллекции с устойчивостью к коррозии и выгоранию; мягкие модули со съёмными чехлами. Все узлы выполнены на сборно-разборных закладных для быстрого сервиса.
Zatoka Deluxe получил лёгкий, фотогеничный и одновременно практичный интерьер: летом — воздушный курортный комфорт, в межсезонье — тёплая камерная атмосфера. Решения выдерживают прибрежные нагрузки, а целостная морская идентичность усиливает узнаваемость отеля и качество гостевого опыта.

Входная группа

Входная группа

Входная группа

Ресторан при отеле

Ресторан при отеле

Типовой номер

