+380 (67) 598 53 22
Входная группа
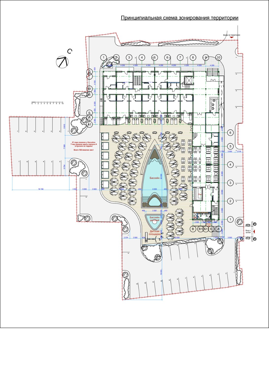
Ресторан при отеле
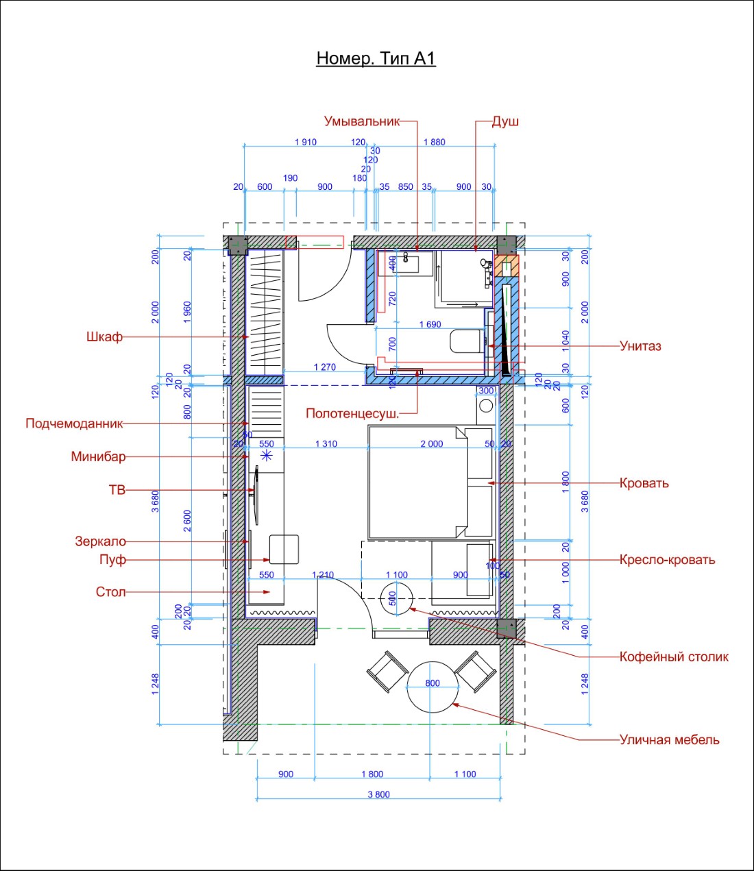
Типовой номер
Фотогалерея
Понравился наш проект? Нажми на иконку и поделись этой страницей в социальных сетях:
Заполните форму
и наши менеджеры свяжутся с вами в ближайшее время.