Дизайн интерьера в стиле "Джапанди Ваби-саби" для апартаментов под сдачу в аренду в элитной резиденции ЖК Кандинский.

  • Тип проекта:
    Апартаменты
  • Площадь:
    71㎡
  • Стиль:
    Минимализм, Джапанди, Ваби-саби
  • Место:
    Одесса, Резиденция ЖК Кандинский

Дизайн-проект апартаментов в резиденции Кандинский в Одессе: особенности жилого комплекса.

Добро пожаловать в апартаменты в резиденции "Кандинский" — в прекрасном жилом комплексе в самом сердце Одессы. Здесь вы найдете уникальные апартаменты, для которых  компания CIVILLY разработала  дизайн интерьера в стиле «Джапанди», основанный на принципах японской философии «Ваби-саби».

Жилой комплекс "Кандинский" в Одессе - это роскошная резиденция, где высококлассный дизайн сочетается с превосходным уровнем комфорта и функциональностью. Расположенный в престижном районе города, комплекс апартаментов "Кандинский" предлагает своим жителям элегантные квартиры, созданные с учетом самых современных тенденций в архитектуре и дизайне. Резиденция "Кандинский" представляет собой идеальное сочетание элегантности, качества и превосходного обслуживания, делая ее привлекательным местом для проживания в самом сердце Одессы.

 

Цели и задачи дизайн-проекта квартиры в резиденции Кандинский, стиль, настроения, планировочные решения. 

Задача, которую поставил перед нами заказчик — создать дизайн интерьера в стиле Джапанди с элементами Ваби-саби для апартаментов под сдачу в резиденции Кандинский в Одессе. Апартаменты будут сдаваться летом посуточно, а в низкий сезон — на длительное время. Нам необходимо создать запоминающийся, яркий, стильный дизайн интерьера, который подчеркнет уровень и статус жилья, выделит апартаменты на сайтах бронирования по сравнению с другими апартаментами, создаст добавочную стоимость. Одновременно с этим, апартаменты должны быть удобными и приспособленными для длительного проживания. Очень важно, что ремонт должен быть выполнен в четко установленный срок и вписаться в заданный заказчиком бюджет. Строительство и ремонт в Одессе предлагают разные компании, но клиенты выбрали CIVILLY, потому что именно мы более 20 лет предоставляем уникальную услугу — дизайн, ремонт и мебель под ключ.

 

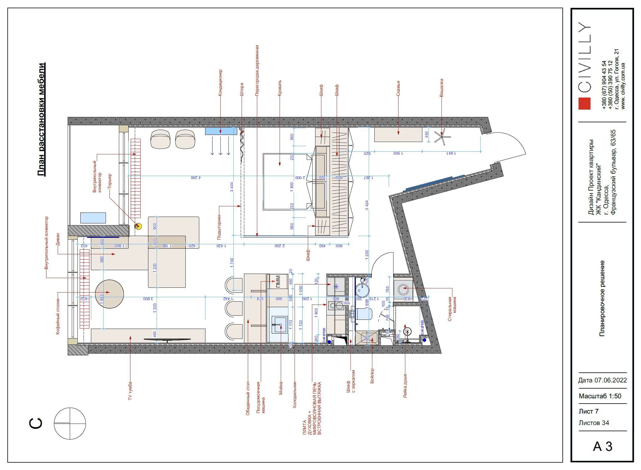
Планировка апартаментов в резиденции ЖК Кандинский в Одессе
Планировка апартаментов в резиденции ЖК Кандинский в Одессе

 

Планировки квартир и апартаментов в резиденции Кандинский в Одессе.

Нужно отметить, что планировки квартир в резиденции Кандинский очень специфические. Архитектурные формы здания различаются на различных уровнях, создавая уникальные и иногда удивительные пространства — стены пересекаются под всевозможными углами, отличными от 90 градусов, что сильно усложняет как планировку, так и меблировку. Работать с неудачными планировками от застройщика — задача, которая требует профессионализма и концентрации сил, и наша команда, по итогу, прекрасно справилась с задачей. Мы создали планировочное решение апартаментов, которое можно назвать крайне удачным — острые углы не создают неудобств и видимого эстетического несовершенства, при этом потери полезной площади минимальны. 

Особое внимание мы уделили функциональности планировочного решения этих апартаментов. В планировке квартиры есть все, что необходимо для комфортного длительного проживания — много мест для хранения, полная комплектация необходимой бытовой техникой, в том числе стирально-сушильная и посудомоечные машины. Особенность планировки — минимизация межкомнатных стен и перегородок — они практически отсутствуют (кроме санузла), а, значит — уменьшение затрат на их возведение и отделку. Зона спальни отделена от коридора шкафом, который и является стеной, а от зоны кухни студии — стеной из мебельных панелей, декорированных стабилизированным мхом. Планировка предусматривает остров, в котором комбинируются функции кухни и стола. со стороны студии зона спальни может закрываться плотной портьерой из ткани dim out.  

 

Как влияет дизайн апартаментов под сдачу в аренду на успешность этого бизнеса?

Хороший дизайн апартаментов — ключ к успеху бизнеса по сдаче их в аренду. Вот несколько факторов, которыми дизайн может повлиять на успех этого дела:

  • Привлечь внимание, выделится среди других прадложений. Все предельно просто. Для начала клиент должен обратить внимание на ваш объект недвижимости среди сотен других на BOOKING.COM, AirBnB или другой системе бронирования. Эстетика и функциональность дизайна апартаментов являются важными факторами, влияющими на привлекательность для потенциальных арендаторов. Хорошо спроектированные и стильные апартаменты привлекут больше клиентов, увеличивая спрос и вероятность занятости на протяжении длительного времени.
  • Комфорт и удобство: Хорошо продуманный дизайн апартаментов обеспечивает комфорт и удобство для жильцов. Это может включать в себя удобную мебель, функциональные пространства, современные удобства и хорошую звукоизоляцию. Когда арендаторы чувствуют себя комфортно и удобно, они склонны оставаться на более длительный срок и рекомендовать апартаменты другим.
  • Персональность и уникальность: Отличительный дизайн апартаментов может помочь выделиться на фоне конкуренции. Уникальные элементы, стильные детали и характерные черты создают запоминающийся образ и делают апартаменты более привлекательными для арендаторов. Это может привлечь людей, ищущих уникальный и неповторимый опыт проживания.
  • Улучшение репутации: Качественный дизайн интерьера может повысить репутацию бизнеса аренды апартаментов. Положительные отзывы и рекомендации от довольных жильцов могут привлечь больше клиентов и создать положительное впечатление о вашем бизнесе. Уникальный и красивый дизайн может помочь сформировать престижный образ и укрепить позиции на рынке.

 

Дизайн апартаментов в резиденции ЖК Кандинский в Одессе
Дизайн апартаментов в резиденции ЖК Кандинский в Одессе — 3D Визуализация

 

В целом, дизайн апартаментов в аренду имеет большое значение для успешности этого бизнеса. Хорошо продуманный и привлекательный дизайн способствует привлечению клиентов, удержанию арендаторов на длительный срок и повышению общей репутации вашего бизнеса.

 

Что такое философия ваби-саби? Как ее применяют в дизайне интерьера?

Ваби-саби (侘寂) переводится с японского как "скромная простота", представляет собой обширную концепцию в японской философии. Слово "ваби" олицетворяет непритязательность, скромность и внутреннюю силу, в то время как "саби" ассоциируется с архаичностью, неподдельностью и подлинностью. Эти два понятия в совокупности выражают глубокое понимание красоты в простоте, уважение к старине и спокойствие одиночества в контексте японского мировоззрения.

Ваби-саби - это японское понятие, которое описывает философию простоты, скромности и красоты, присущую природе и старым вещам. В дизайне интерьера в стиле ваби-саби эта философия отражается в каждой детали, создавая атмосферу гармонии, спокойствия и природной красоты. Концепция ваби-саби вдохновляет на замедление темпа, наслаждение моментом и ценность простоты и неперфекции. Он создает умиротворенную обстановку, где человек может отключиться от повседневных забот и насладиться естественной красотой и гармонией.

 

Что такое стиль «Джапанди» в дизайне интерьера? Scandi + Japan Wabi Sabi = Japandi.

Japandi – это гармоничное сочетание японской и скандинавской эстетики, происходящее от объединения слов "Japan" и "Scandi". Этот стиль утверждается на философских принципах Wabi Sabi, где ценится простота и неторопливость, а также на скандинавской практике Hugge, которая призывает к комфорту, уюту и благополучию.

Минималистичные линии скандинавского дизайна в Japandi сочетаются с функциональной элегантностью японской эстетики. В этом стиле основное внимание уделяется простоте, создавая спокойную и теплую атмосферу с минималистской планировкой.

Если говорить кратко, Japandi можно охарактеризовать как формулу:

Джапанди = Скандинавский минимализм и практичность+ японская эстетика натуральной простоты 

На сегодняшний день джапанди – это настоящий тренд в мире дизайна. Стиль завоевал популярность благодаря своей легкой эстетике, сочетающейся с высокой практичностью. Джапанди помогает людям найти баланс и гармонию в суете современной жизни, создавая уютную атмосферу и одновременно избавляясь от излишества вещей и деталей. Такой подход освобождает пространство от лишнего "шума" и снижает уровень стресс.

 

 

Ключевые элементы стиля «джапанди» в интерьере. 

Основные принципы дизайна джапанди включают натуральность, неперфекционизм и простоту. Интерьеры в стиле джапанди стремятся передать красоту неполных форм, старых материалов и природных текстур. Они ценят неправильности, потертости и следы времени, которые придают предметам уникальность и историю.

В цветовой палитре стиля джапанди преобладают приглушенные и естественные оттенки:

  • землистые и древесные оттенки;
  • пастельные тона, кофейные и бежевые оттенки;
  • светло-серые с тёплым подтоном;
  • молочно-белые и сливочные оттенки;
  • охра, терракота, коричневый и графитовый – для создания единичных акцентов.

Это создает спокойную и расслабляющую атмосферу, приглашая жильцов забыть о суете и насладиться простотой и естественностью окружающего пространства.

 

Дизайн апартаментов в стиле ваби-саби в ЖК Кандинский в Одессе
Дизайн апартаментов в стиле ваби-саби в ЖК Кандинский в Одессе Дизайн апартаментов в резиденции  — 3D Рендер

 

Легкая небрежность. Влияние философии ваби-саби придает интерьеру непринужденность, сохраняя при этом его уют и эстетическую привлекательность. Это может проявляться в:

  • Мятых светлых постельных принадлежностях;
  • Необработанных деревянных поверхностях с уникальным рисунком;
  • Неравномерной текстуре камня;
  • Эффекте легкой ржавчины;
  • Намеренно неровной штукатурке.

Мебель в стиле джапанди часто имеет простые и органические формы, отличается простотой, эргономичностью и визуальной легкостью. Все системы хранения – встроенные и закрытые, без открытых полок и полочек, дверцы шкафов часто реализованы без видимых накладных ручек. Такой минималистичный подход создает уютный и упорядоченный интерьер в духе японской эстетики. Мебель может иметь потертости, небольшие дефекты или быть изготовленной вручную, чтобы подчеркнуть ее уникальность и неповторимость, применяют естественные материалы, такие как дерево, камень и ротанг. Мягкая мебель часто характеризуется низким профилем, диваны приземисты и часто не имеют ножек, что символизирует связь человека с землей.

Декор в стиле джапанди также отражает принципы простоты и неполноценности. Вместо избыточных украшений предпочтение отдается минимализму и естественным элементам  с использованием традиционных японских элементов (бонсай, икебана, керамика). Вазы с сухими ветками или простыми цветами, камни, деревянные скульптуры и текстиль с грубой текстурой - все это создает атмосферу естественной гармонии. Также рекомендуется приобретать вещи, созданные вручную. Эти предметы могут обладать некоторой грубостью и деревенским характером, что добавляет им уникальности. Примеры включают в себя плетеные корзины, однотонные текстильные коробки, органайзеры.

Натуральные материалы и текстиль. Выбирайте однотонные натуральные текстильные материалы. Лен, джут, велюр и неотбеленный хлопок являются основными текстильными предпочтениями в этом стиле. Эти материалы обеспечивают естественность и приближают к природе, создавая уютное и приятное тактильное восприятие. Мебель предпочтительна из натурального дерева: бука, дуба, ясеня, бамбука. Сочетание светлых и тёмных пород дерева придает интерьеру стильный и гармоничный вид.

Освещение в интерьере джапанди также играет важную роль. Естественное освещение является предпочтительным, поэтому большие окна и минимум штор или занавесей позволяют максимально использовать естественный свет. Обеспечьте избыток естественного света, используя легкую ткань или светлые деревянные жалюзи вместо плотных штор. Окна следует делать большими и сохранять свободное пространство, избегая постоянного занавешивания. Мягкое и приглушенное искусственное освещение дополняет общую атмосферу и создает уют и теплоту в помещении. Воспользуйтесь светильниками с круглыми абажурами из ткани, бумаги или матового стекла. 

 


 

Используя эту философию, дизайнеры  CIVILLY создали уникальный дизайн интерьера квартиры в Одессе, где каждая деталь имеет свое предназначение и эстетическую ценность. Ремонт апартаментов под ключ будет выполняться нашей компанией, что позволит воплотить проект с точностью до малейших деталей.

 

Архитекторы и дизайнеры разрабатывают проект интерьера апартаментов в в Одессе
Архитекторы и дизайнеры CIVILLY разрабатывают проект интерьера апартаментов в в Одессе​​​​​​

 

Наша компания имеет 20-ЛЕТНИЙ ОПЫТ создания ресторанов, отелей, СПА – центров, банкетных залов (конференц залов) и апартаментов «ПОД КЛЮЧ», который включает разработку дизайна, проектирования и монтажа всех инженерных сетей и коммуникаций, проведение всех строительно-отделочных работ, производство мебели и предметов декора, комплектацию отделочными материалами и аксессуарами.  Наши архитекторы-дизайнеры работают В ЕДИНОЙ КОМАНДЕ с профессиональным отельным управляющим, инженерами по строительству, электрике, отоплению, водоснабжению, вентиляции и кондиционированию,  а также со специалистами по изготовлению мебели ВНУТРИ ОДНОЙ КОМПАНИИ. Это дает возможность еще на стадии разработки дизайн-проекта получить все необходимые консультации и согласовать проект с исполнителями, правильно рассчитать стоимость его реализации.

Над вашим проектом будет работать целая команда специалистов узкого профиля с большим опытом работы, которые знают, как создать проект с нуля и эффективно воплотить его в реальность – профессиональный отельный управляющий, архитекторы, дизайнеры, инженеры, строители, менеджеры по комплектации.
 

Мы не просто проектируем, строим и комплектуем мебелью апартаменты — МЫ СОЗДАЕМ, ЧТОБЫ ГОРДИТЬСЯ!

 

ХОЧЕШЬ ЗАКАЗАТЬ КЛАССНЫЙ ДИЗАЙН-ПРОЕКТ ИНТЕРЬЕРА ДЛЯ ТВОЕЙ КВАРТИРЫ, ДОМА ИЛИ АПАРТАМЕНТОВ?

 

ПИШИ, ЗВОНИ ПРЯМО СЕЙЧАС!

 

СВЯЗАТЬСЯ С НАМИ