Данный объект находится в новом жилом комплексе Одессы «Четыре сезона». Владельцы этой трехкомнатной квартиры площадью 102 кв.м., молодая пара с хорошим вкусом и четким пониманием тот, что они хотят. А когда заказчик знает, что он хочет, профессионал знает, как он это воплотит в жизнь. Именно поэтому ребята обратились к нам и получили тот результат, которого ожидали.
Изначально в приоритете было создание такого дизайн-проекта, который не выйдет из моды ближайшие 5-10 лет. Изучив привычки и вкусовые особенности наших клиентов, мы пришли с ними к общему знаменателю под названием функционализм, т.е. основное внимание будет уделено функциональности каждой зоны, нежели ее декору.
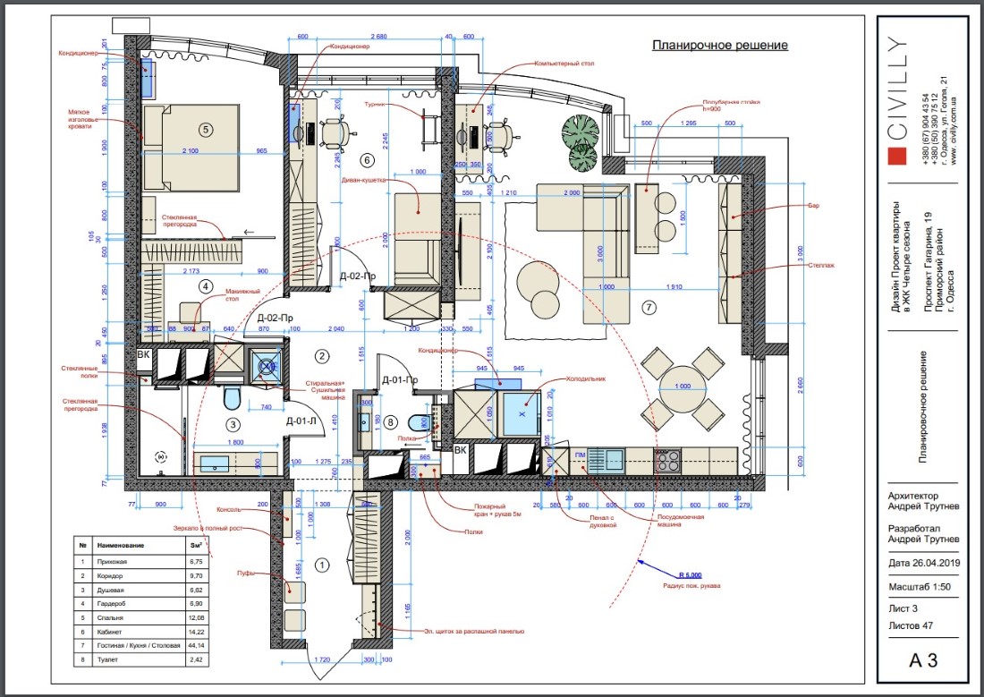
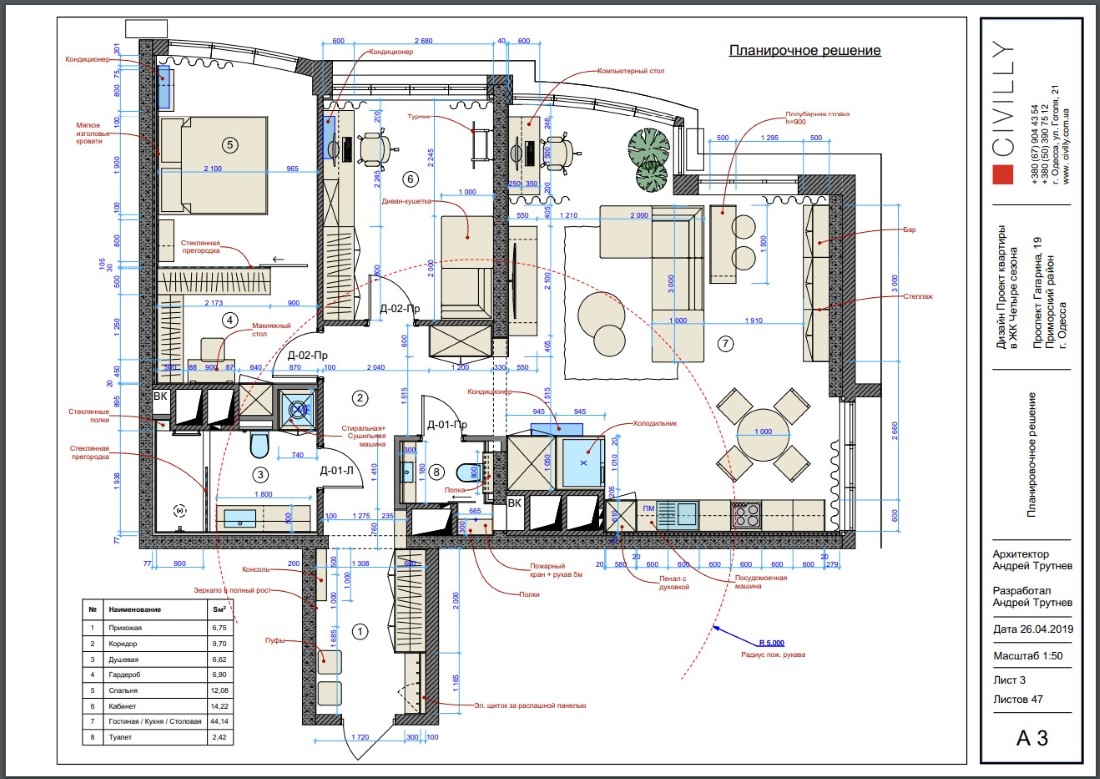
В дизайн-проекте этой квартиры была запроектирована комната-студия, которая возникла путем объединения зоны кухни, столовой и гостиной. Объединив лоджию с общим помещением, мы нашли место для рабочей зоны владельца. Так же в квартире запроектирована мастер-спальня с проходной гардеробной, кабинет, который в последствии трансформируется в детскую комнату, ванная комната и гостевой санузел.

Стилистика данного объекта- это собирательный образ минимализма и функционализма. Каждая зона – это предельно эргономичное пространство с простой геометрией и объемными предметами мебели, здесь практически нет мелких элементов декора.


В данном дизайн-проекте за основу взяты светлые стены и полы из светлого керамогранита в контрасте с достаточно темными оттенками мебели. Большая часть полов квартиры покрыта плиткой с устройством небольших зон теплых полов, что создает уютный и удобный для жизни микроклимат.

В коридоре запроектирована вместительная мебельная группа для хранения одежды. Одна из панелей с крючками распашная, это было создано для скрытия электрического щитка.

Мебель для всей квартиры выполнена крупными геометрическими элементами, мы постарались создать ее лаконичной, приближенной к минимализму, делая акцент на сочетание цветов и ее текстуру.

Вход в спальню лежит через гардеробную комнату. Гардероб от спальни отделяет раздвижная перегородка из тонированного стекла. Сделано это для того, чтобы пустить солнечный свет в помещение и придать приватности самой спальне. Внутри гардеробной установлена зеркальная дверь на всю высоту помещения. Темное дерево спальни придает помещению уютную атмосферу.


Мультифункциональная комната между спальней и кухней-студией изначально будет использоваться как кабинет, а затем – трансформируется в детскую.

Дизайн-проект был разработан нашим архитектором, максимально удовлетворяя запросам и пожеланиям заказчиков. Именно их мнение и пожелание, а потом – отзывы о нашей работе являются самым главным критерием оценки и стимулом для воплощения новых идей.