Заказчик данного дизайн-проекта директор IT компании в городе Умань является нашим постоянным клиентом. Дизайн офиса по его просьбе был выполнен в современном стиле с характерными чертами минимализма.
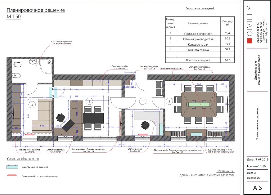
В оформлении дизайна-проекта архитекторы компании Civilly использовали четкие формы, простую геометрию, мягкое рассеянное освещение. В связи с тем, что помещения небольшие, особое внимание при разработке дизайн-проекте офиса пришлось уделить эргономике. Дизайнерам была поставлена задача вместить многие необходимые предметы в очень компактное пространство. Архитекторы нашей компании постарались сделать дизайн офиса простым и комфортным для работы. Офис состоит из группы помещений: приемная, рабочий кабинет руководителя, конференц-зал и комната отдыха.

Дизайн приемной выполнен так, чтобы производить впечатление на посетителей. Ключевым моментом является передняя панель ресепшн, выполненная из фрезерованного акрила с подсветкой, рисунок которой символизирует всемирную паутину. Эта же идея транслируется на диагональные русты, которые рассекают стеновые панели.

В разработке данного дизайн-проекта мы пытались применить нестандартный подход, эти же диагонали прослеживаются в формах потолка, в оформлении стола офис-менеджера, в конструкции гардероба при входе.
Важная деталь в дизайне офиса в стиле минимализм — практически полное отсутствие декора. Основными цветами, которые использовали архитекторы нашей команды в дизайне этого офиса, являются белый, серый, цвет древесины.

В работе над дизайном кабинета руководителя мы старались дать небольшое количество открытых полок, что бы все предметы были спрятаны и не пылились. Для нас было важно, что бы картинка смотрелась минималистично, а это значит функционально, прочно, красиво, вмещая в себя только самое важное и необходимое.


Перед разработкой стола руководителя, мы внимательно изучили его привычки, внесли корректировку в его существующую схему посадки, нашли удобное расположение экрана монитора и конференц-приставки.

Интересным решением в кабинете руководителя является дверь в комнату отдыха, которая скрыта за стеновой МДФ панелью.

Дизайн комнаты отдыха предельно функциональный. За фасадами шкафов скрыто множество необходимой техники, это кофе машина, сейф, холодильник.



В конференц-зале применены авторские декоративные решетки, которыми закрыты радиаторы, конференц-стол сделан максимально большим, пропорционально размерам помещения. Декоративный стабилизированный мох на стеновых панелях и в центре стола предназначен для того, чтобы несколько разрядить временами суровую атмосферу переговоров.


В целом, термины, которыми мы руководствовались при разработке этого дизайна – это сдержанность, простота, функциональность, выдержанность стилей.