Купили квартиру? Расслабляться пока рано – вам еще предстоит ремонт. И лучше всего – эксклюзивный, уютный, с идеальным качеством, тот, в котором вы будете получать удовольствие от жизни.
Полномасштабный ремонт «под ключ» следует начать с подготовки. На этой стадии разрабатывается дизайн-проект: проводятся замеры, предлагаются варианты планов расстановки мебели, поле выбора одного из вариантов выполняется 3D-визуализация, а затем чертежи. На основании готового дизайн-проекта составляется смета, график выполнения работ, график финансирования ремонта квартиры. Также наша компания просчитывает стоимость изготовления мебели и предлагает финишные отделочные материалы и предметы интерьера – двери, светильники, плитку, паркетную доску, обои, декоративные штукатурки, шторы и так далее.
В итоге каждый этап ремонта и меблировки квартиры стартует в назначенное время, проходит без проблем, а результат полностью удовлетворяет заказчика – ведь он знает сколько будет стоить ремонт и мебель в его квартиру и имеет возможность финансировать проект поэтапно.
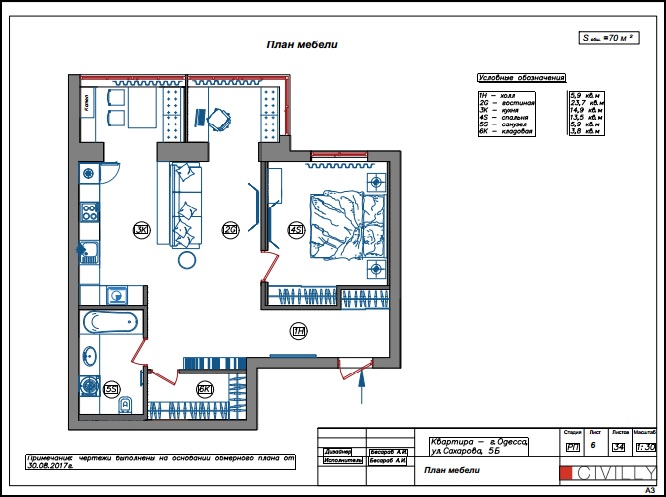
К нам обратились хозяева не совсем удачно спланированной квартиры в Одессе. Глава семейства - моряк, проводящий длительное время в командировках, он искал ответственного подрядчика, который предоставляет полный комплекс услуг: «дизайн, ремонт и мебель под ключ». То есть, не только создает дизайн интерьера и выполняет все ремонтно-отделочные работы, но также осуществляет декорирование, производство и установку мебели.
Прежде чем ломать стены, мы создали новый дизайн-проект, и это «новое» заложили в строгие стилистические рамки. Учли размеры помещений, выбрали идеальный для заказчика стиль оформления – современную классику, или, другими словами неоклассику. Также подобрали безупречное и уютное цветовое решение – комбинацию кремового и кофейного оттенков. С учетом всех инженерных задач и пожеланий мы разработали функциональные зоны интерьера со встроенной мебелью собственного изготовления.
В нашем случае застройщик предлагал квартиру с двумя маленькими комнатами, узкой кухней и ванной. Чтобы увеличить помещение, наши дизайнеры предложили, а заказчики приняли смелое для них решение - «раскрыть» лоджии и объединить гостиную с кухней, не разделяя перегородкой прихожую. В итоге мы получили абсолютно новую, просторную планировку, с достаточным количеством дневного света.

Итак, у нас получилась просторная кухня-студия в классическом стиле. Здесь хозяева будут отдыхать после суеты рабочего дня или принимать гостей. Поэтому порядок должен быть идеальным. Мы тщательно продумали конструкцию мебели и осуществили подбор бытовой техники – запахи будет эффективно устранять мощная вытяжка, а все лишнее от посторонних глаз скроют закрытые ящики и полки.
Кухонную зону и гостиную разделяет барная стойка с мраморной столешницей.
Общий стиль дизайна подчеркивает пол - молочного цвета плитка удачно сочетается с темной паркетной доской.
Современная интерпретация классики также царит в спальне. Комната небольшая, «съедать» пространство темными тонами – нецелесообразно. Встроенный в нишу шкаф с зеркальными фасадами визуально расширяет помещение и отражает свет из окна.
В процессе работы над дизайн-проектом была создана 3D-визуализация помещений. Заказчик увидел целостный интерьер в стиле «неоклассика» с грамотно подобранной и проработанной мебелью и предметами интерьера, с текстурами и материалами на стенах и на полу. А также согласился с тем, что мы не ошиблись с советом: кухня-студия – лучше, чем просто кухня.
Дизайн-проект был утвержден без каких-либо замечаний, и практически без правок, сегодня работы над объектом практически завершены, а заказчики готовятся начать новый счастливый период жизни в квартире их мечты.