
Замеры

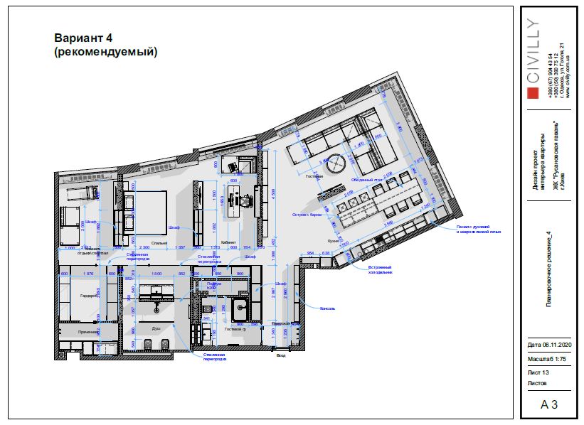
Планировочное решение
Визуализации предложенного планировочного решения

Входная группа

Кухня-столовая

Пространство для приёма гостей: барная стойка и обеденный стол

Кабинет

Мастер-спальня

Мастер-спальня и мастер с/у

Мастер-с/у

Мастер-с/у

Гостевой с/у