Нам, как архитекторам и дизайнерам интерьера, порой больно смотреть на планировки объектов недвижимости, которые продают застройщики. Мы часто и искренне удивляемся: почему и, главное, ЗАЧЕМ!!! их приобретают инвесторы? В такой недвижимости неудобно и некомфортно жить. В ней не получится сделать хороший дизайн, нельзя сдавать ее за хорошие деньги, потому что клиенты, которые испытали неудобства оставят негативные отзывы.

Ответ прост - хорошая цена на плохие планировки, при этом не профессионалу сложно увидеть масштаб проблемы. «Что-нибудь, да придумаем...» — думает обыватель.
А ведь можно было бы купить не «квадратные метры», а «отличные апартаменты». Как правило, примерно за те же деньги можно было выбрать удачную планировку, в этом же доме, пусть немного меньше, но значительно лучше. Жить - с комфортом, сдавать - дороже и регулярнее. За 10 лет хорошая недвижимость принесет на десятки, а то и сотни тысяч долларов больше дохода.
1. НЕДВИЖИМОСТЬ ЭЛИТНО-АВАНГАРДНОГО БИЗНЕС-КЛАССА

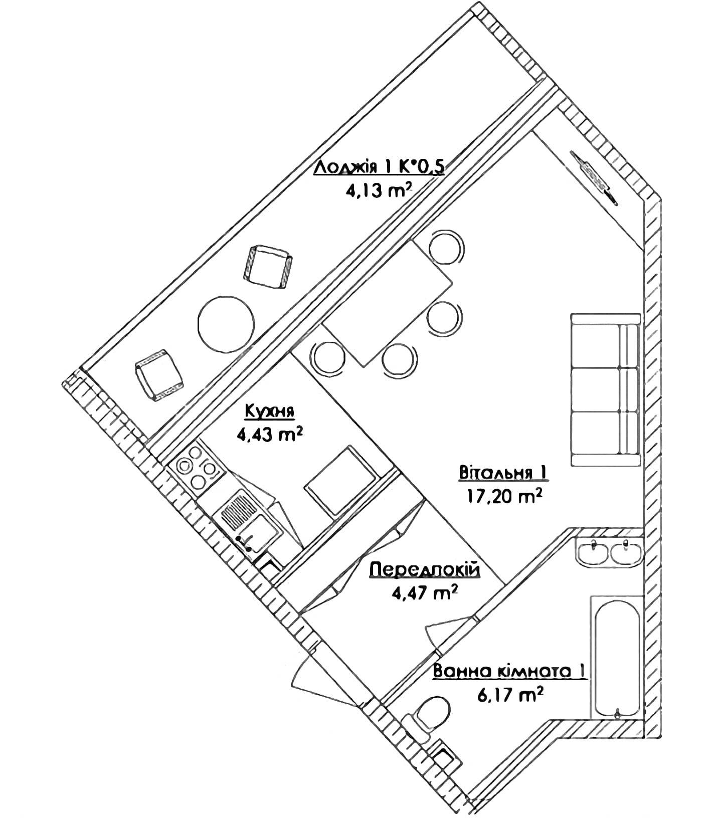
3D визуализация помещения: планировка семейства типовых квартир (от 36 до 60 м2)
Сегодня мы изучим планировку элитных апартаментов в резиденции бизнес-класса с видом на море. Средняя стоимость за 1 м2 - примерно 100 000 грн (около 2 750 долларов США на момент написания статьи). Среди многочисленных преимуществ комплекса, застройщик выделяет “...оптимальные планировки апартаментов с просторными террасами” и позиционирует проект, как “Олицетворение архитектурного авангарда”. С чем, собственно, сложно не согласиться.

Планировка от застройщика. (Качество оригинала в несколько раз улучшено в графическом редакторе)
Форма здания меняется на разных этажах, порождая очень необычные, причудливые, порой любопытные пространства, которые, тем не менее, нужно продавать, демонстрировать потенциальным клиентам функционал их будущей квартиры.
На примере семейства однотипных апартаментов, давайте посмотрим, как выглядит комфортная и красивая жизнь глазами архитекторов, дизайнеров и менеджеров отдела продаж одного из элитных новостроев.
2. ОРГАНИЗАЦИЯ ПРОСТРАНСТВА

- Спального места планировка не предусматривает, ее заменяет раскладной диван-кровать.
- В квартире 4 стула, поэтому гостей может быть тоже четыре: трое могут разместиться на раскладном диване, а 4-й - в комфортной теплой ванне.
- С кровати очень удобно просматривается - кто пришел, и наоборот, доставщику пиццы сразу от входной двери будет видно, куда именно следует нести пиццу, что именно происходит в кровати, безопасно ли приближаться вплотную.
3. АВАНГАРДНЫЕ ТЕХНОЛОГИИ

4. БЕЗОПАСНОСТЬ

- В наше нестабильное время особенно важен такой критерий безопасности, как устойчивость. Согласитесь, очень сложно упасть во время мытья посуды, если сбоку находится стена, а сзади могучий холодильник.
- Проектанты позаботились об этом и в ванной комнате: она оборудована сидячими местами для умывания одновременно двух человек.
5. ЭРГОНОМИКА КУХНИ

- Мощная (5-7 кВт) варочная поверхность на 4 конфорки обеспечит должную вариативность меню для проживающих либо отдыхающих в апартаментах.
- В зимнее время единовременное кипячение 4-х кастрюль позволит быстро восполнить теплопотери от панорамного фасадного остекления.
- При этом на столешнице остается достаточно рабочей поверхности, чтобы приготовить сэндвич продолговатой формы
6. ЭКОЛОГИЧНОСТЬ

- В апартаментах очень немного мебели, а значит проектанты и владельцы внесли свой вклад в заботу об окружающей среде, уберегли от вырубки несколько деревьев и сэкономили для потомков несколько кубометров газа и нефти.
- Благодаря альтернативной геометрии стен, ТВ тумба на 7% меньше,чем стандартная ТВ тумба тех же габаритов!
7. ПРОСТРАНСТВО ВАРИАНТОВ

- На разных этажах апартаменты отличаются по площади, что способствует вариативности и разнообразию замыслов проектантов. В этом примере планировки уменьшено искривление пространства времени - только для просмотра ТВ с дивана-кровати.
- А вот за диваном добавлено вместительное свободное пространство - его можно использовать для известной ролевой игры в прятки, либо, как хранение спортивного инвентаря (велосипеда в летнее время, лыж и сноубордов - в зимнее).
8. РЕЗЮМЕ
Апартаменты привлекают внимание своей неординарностью, мы прогнозируем большую привлекательность, востребованность и успех в продажах в следующих кругах:
- инвесторов-энтузиастов, способных по достоинству оценить нетрадиционность и креативность замыслов;
- прогрессирующих выпускниц курсов дизайна районного значения;
- специалистов по отделочным работам - адептов школ альтернативных строительных технологий;
- простых людей — ценителей художественного искусства, которые под пластом чванливой маски элитности смогли углядеть тонкие, но решительные мазки, написанные рукой истинного мастера.
А теперь - серьезно. Мы призываем всех наших подписчиков и клиентов: перед покупкой недвижимости - проконсультируйтесь с нашими специалистами. Мы готовы проанализировать ваши варианты и дать заключение, смогут ли “золотые” квадратные метры стать хорошим вложением для ваших инвестиций.

Дизайн-проект апартаментов Кандинский в Одессе на базе ХОРОШЕЙ планировки.
СОЗДАЙТЕ КЛАССНЫЙ ПРОЕКТ С НАШЕЙ КОМАНДОЙ!
Для создания КАЧЕСТВЕННОГО ПРОЕКТА знаний и опыта одного архитектора и дизайнера недостаточно - над ним должна работать команда специалистов. Поэтому очень важно, чтобы работы на объекте выполняла сплоченная команда профессионалов, которые делают одно единое дело и успешно взаимодействуют друг с другом. Только таким образом можно обеспечить желаемый результат: ПРЕМИАЛЬНЫЙ ВНЕШНИЙ ВИД при АДЕКВАТНОМ БЮДЖЕТЕ.
Наша компания имеет 20-ЛЕТНИЙ ОПЫТ создания ресторанов, отелей, СПА – центров, банкетных залов (конференц залов) и апартаментов «ПОД КЛЮЧ», который включает разработку дизайна, проектирования и монтажа всех инженерных сетей и коммуникаций, проведение всех строительно-отделочных работ, производство мебели и предметов декора, комплектацию отделочными материалами и аксессуарами. Наши архитекторы-дизайнеры работают В ЕДИНОЙ КОМАНДЕ с профессиональным отельным управляющим, инженерами по строительству, электрике, отоплению, водоснабжению, вентиляции и кондиционированию, а также со специалистами по изготовлению мебели ВНУТРИ ОДНОЙ КОМПАНИИ. Это дает возможность еще на стадии разработки проекта получить все необходимые консультации и согласовать проект с исполнителями, правильно рассчитать стоимость его реализации.
Над вашим проектом будет работать целая команда специалистов узкого профиля с большим опытом работы, которые знают, как создать проект с нуля и эффективно воплотить его в реальность – профессиональный отельный управляющий, архитекторы, дизайнеры, инженеры, строители, менеджеры по комплектации.

Мы не просто проектируем, строим и комплектуем мебелью апартаменты — МЫ СОЗДАЕМ, ЧТОБЫ ГОРДИТЬСЯ!
Читайте статью в нашем блоге "Что такое дизайн-проект интерьера и зачем он нужен? в разделе нашего блога: «Дизайн-проект: стили интерьера».
Понравился наш проект?
Нажми на иконку и поделись этой страницей в социальных сетях:
Как создать успешный бизнес в HORECA? Роль концепции и мудборда в разработке дизайн-проекта ресторана или кафе.
-Размышления ИИ на тему: Нейросети в дизайне интерьера: останутся ли архитекторы и дизайнеры без работы?





Автор статьи: Павел Иванов







