Покупка квартиры в новостройке – важное событие и серьезная инвестиция. Но с оформлением документов на право собственности ваши хлопоты не заканчиваются – теперь нужно подумать о ремонте и обустройстве нового жилья. И здесь большинство людей задаются довольно непростым вопросом: «Пытаться руководить ремонтом самостоятельно или заказать дизайн-проект интерьера?».
Чтобы вы смогли принять адекватное, обдуманное решение, сегодня мы постараемся ответить на такие часто задаваемые вопросы, как:
- Что такое дизайн-проект интерьера?
- Кому и для чего он нужен?
- Можно ли обойтись без него?
- По каким критериям выбирать исполнителя дизайн-проекта?
- Как не дать себя обмануть, заказывая то, в чем вы – не профи?
Что такое дизайн-проект интерьера?
Дизайн-проект интерьера – это документ, идея, запечатленная на бумаге, которая даст вам возможность реализовать квартиру своей мечты, а строителям – рассчитать смету и составить план работ по ремонту и обустройству вашего жилья. По этому же документу вы сможете контролировать ремонт квартиры на каждом ее этапе, чтобы получить именно то, что вы планировали, и о чем всегда мечтали.
Каковы критерии качественного дизайн-проекта?
Есть несколько критериев, по которым оценивается качество дизайн-проекта интерьера:
1. Функциональность планировочных решений, практичность и эргономика – это то, насколько вам удобно и комфортно будет жить в новой квартире на протяжении многих лет. Заказывая дизайн-проект интерьера у хороших специалистов, вы получите несколько вариантов планировок, сможете выбрать ту, которая подходит вам лучше всего и, вместе с командой специалистов, доработать ее, чтобы создать проект квартиры вашей мечты.

2. Эстетическая составляющая определяется стилистикой, цветовой гаммой, настроением будущего жилья. С помощью мудборда (это ассоциативный ряд, подбор картинок настроения интерьера и цветовой гаммы), дизайнер определяет, что именно вам нравится. А затем разрабатывается дизайн непосредственно вашего интерьера, создаются трехмерные визуализации всей квартиры, детализированные до мелочей.

3. Бюджет реализации дизайн-проекта, который определяется наличием средств у заказчика на ремонт и меблировку квартиры. То есть, дизайнерская идея должна не только быть практичной и функциональной и нравиться заказчику – она должна отвечать запланированному бюджету на ремонт и полностью в него вписываться. В противном случае дизайнерская идея умрет еще на бумаге.
4. Правильный подбор мебели и отделочных материалов, которые не только гарантируют, что ваше жилье будет выглядеть так, как на дизайн-проекте, но и прослужат годами. Ведь все мы стремимся сделать ремонт раз и надолго. Для этого архитектор/дизайнер должен знать эксплуатационные характеристики применяемых в проекте отделочных материалов, материалов мебели, тканей и т.д.

Чем обусловлена разница цен на дизайн интерьера в разных компаниях?
В поисках компании, которая разработает дизайн-проект интерьера для вашей новой квартиры, вы наверняка столкнетесь с огромным разбросом цен: у одной компании работа может стоить от 7 у.е. за квадратный метр, а у других – до 50 у.е. Почему так происходит?
Зачастую здесь разница не в цене, а в подмене понятий. Неопытный заказчик, как правило, не знает, что должно входить в стоимость разработки дизайн-проекта, какой его состав. Этим могут пользоваться недобросовестные компании для предоставления максимально заниженных цен, чтобы привлечь клиента. За эти деньги вы получаете неполный спектр услуг по созданию дизайн-проекта, только малую его часть. Это нельзя называть дизан-проектом.

Давайте рассмотрим, кто на рынке Одессы предлагает сделать дизайн-проект:
1. Строительные компании. Они не специализируются на дизайне интерьера, но им необходима такая услуга, чтобы совершить сделку по отделке квартиры. Поэтому они предлагают несколько чертежей (планировочное решение, планы полов и потолков, электрики) и называют это дизайн-проектом. Однако это лишь чертежи, необходимые для расчета бюджета строительных и отделочных работ. Никакого дизайна интерьера вы чаще всего не получите – вам не предоставят 3d-визуализации с теми самыми уникальными решениями, разработанными именно для вашей квартиры. В ряде случаев эти компании нанимают дешевых и неопытных визуализаторов, которые делают какие-то картинки, которые сложно вообще назвать «дизайном интерьера», а тем более рассуждать о его качестве.

2. Молодые неопытные дизайнеры, невостребованные дизайнеры. Цены могут быть ниже у молодых дизайнеров, которые работают сравнительно недавно и только нарабатывают клиентуру. Либо наоборот – «динозавры», потерявшие связь с реальностью, трендами, создающие дизайн в стиле «евроремонт 90-х». У них одна общая черта – отсутствие объектов и готовность браться за любой проект и за любые деньги. Да, такой дизайн обойдется вам дешевле, но из-за недостатка опыта, профессионализма и вкуса специалиста он может быть не таким стильным, эстетичным или продуманным в практическом и функциональном плане, в плане реализации. То есть, вам могут нарисовать красиво, но воплотить эту идею в реальность будет невозможно (или нерационально сложно/дорого). Молодые неопытные дизайнеры могут допускать множество ошибок, а платит за них клиент. Чаще всего в такой «дизайн» пытаются впихнуть как можно больше всего на свете, чтобы оправдать собственную значимость.

3. Архитектурные компании, дизайнерские бюро, опытные дизайнеры. Есть и еще один вариант – заказать дизайн-проект у хорошей архитектурной студии или дизайнера с большим опытом работы и пониманием всех тонкостей и нюансов. Такая работа, как правило, занимает несколько месяцев, стоит довольно дорого, но проект вашего интерьера действительно будет детально проработан и выглядеть на все сто! Есть ли подводные камни? Конечно, они могут быть. Во-первых, именитые архитекторы и дизайнеры вряд ли будут учитывать ваши ограничения по бюджету на ремонт (ведь у них нет собственной производственной базы, а так же инженеров по строительству и мебели, для того, чтобы просчитать и оптимизировать стоимость реализации проекта интерьера). В результате вам, возможно, придется сначала самим просчитывать дизайн-проект у всех подрядчиков, а потом, возможно, упрощать проектные решения, чтобы вписаться в сумму, выделенную на обустройство квартиры. Кроме того, учитывайте, что некоторые архитектурные студии могут работать лишь в своем выбранном стиле. Вам могут сделать действительно стильный и красивый интерьер, который может даже попасть на обложки журналов. Но если вам этот стиль не подходит, жить в такой квартире вам будет неуютно и некомфортно.
Можно ли заказать лишь чертежи, а дизайн интерьера создать самостоятельно?
Безусловно, вы можете попробовать. Так же, как и написать книгу, стихотворение, песню или написать картину. Но вопрос в том, насколько качественный результат вы получите? Вы можете считать, что ни один посторонний человек не разработает дизайн для вас лучше, чем вы сами. В чем-то вы правы, если сталкивались до этого с непрофессиональными архитекторами или дизайнерами. Однако, есть ли у вас соответствующее образование, опыт и навыки для того чтобы создать качественный дизайн-проект самостоятельно и учесть все до мелочей? Разбираетесь ли вы настолько в стилистике, интерьерных новинках и трендах, нормах эргономики помещений? Компетентны ли вы в технологиях строительно-отделочных работ, инженерных сетях: электрике, кондиционировании, вентиляции, отоплении, водоснабжении? Что вы знаете о мебели и мебельной фурнитуре? Вот вам простой тест – ответьте сами себе на пару вопросов: знаете ли вы, какова высота письменного стола, стула, кухонной столешницы, глубина и ширина комфортного дивана?
Архитекторы и дизайнеры большую часть жизни учатся, чтобы не только уметь «придумывать красиво», но и создавать функциональное и эргономичное пространство. Многие люди без этих знаний часто совершают ошибки, оставляя слишком мало пространства между предметами мебели и стенами, располагая розетки и выключатели так, что впоследствии пользоваться ими очень неудобно. С дизайн-проектом интерьера, который создавал профессионал, таких проблем у вас не будет.
Кроме того, продумывая интерьер самостоятельно, люди часто пытаются интегрировать сразу все, что им когда-то понравилось по отдельности. Здесь вам понравилось это, там вам понравилось то… Но дело в том, что эти элементы интерьера могут быть несовместимыми стилистически, конфликтовать или просто не выглядеть гармонично. В итоге вы получите «кашу», в которой намешано все, что угодно – такой интерьер не будет целостным, сбалансированным, уютным, а вам наверняка уже скоро захочется переделать ремонт.

Готовы ли вы настолько рискнуть? Ведь ремонт квартиры – серьезная инвестиция. Поэтому, даже если вы хотите продумать интерьер сами, обратитесь за помощью к профессиональным дизайнерам, которые помогут воплотить вашу идею в жизнь и избежать всех этих и других ошибок.
Как правильно выбирать специалистов?
Прежде всего, вы должны понимать, что будет входить в стоимость дизайн-проекта, которую предлагает та или иная компания или специалист. Как правило, эта стоимость будет пропорциональной их компетентности и тщательности проработки вашего проекта, то есть трудозатратам - времени, затраченному ими на эту работу. Логично, что чем более красивый и детальный проект интерьера вы получаете, тем дороже это стоит.

Так, в компании Civilly над созданием дизайн-проекта трудится не один человек (дизайнер интерьера), а полноценная команда. В нее входят и этот самый дизайнер (вернее архитектор с высшим образованием), инженеры по электрике, сантехнике, кондиционированию, вентиляции, отоплению, и инженер по производству мебели, и прораб. Ведь только такими совместными усилиями можно достичь действительно стоящего результата. Наличие собственной производственной базы, консультации этих специалистов + многолетний опыт работы позволяют разрабатывать дизайн квартиры или дома в рамках заданного заказчиком бюджета на ремонт и комплектацию. По завершению разработки проекта интерьера вы получаете полную смету и, при необходимости, можете оптимизировать проектные решения, чтобы вписаться в необходимый бюджет, если он все-таки превышен.

При этом вся работа над дизайн-проектом интерьера длится около трех месяцев. Да, вам могут в другом месте пообещать быстрее – за пару-тройку недель. Но вы должны понимать, что и уровень, и количество проделанной работы в этом случае будет соответствующим. Опять же, вы получите то, за что платите.
Поэтому, прежде всего, вы должны проверить полноту проектной документации, которую вы получите на выходе. Например, у нас вы получите полностью проработанный дизайн-проект, позволяющий точно рассчитать бюджет на ремонт, а при его реализации не возникнет вопросов и непонятных ситуаций.

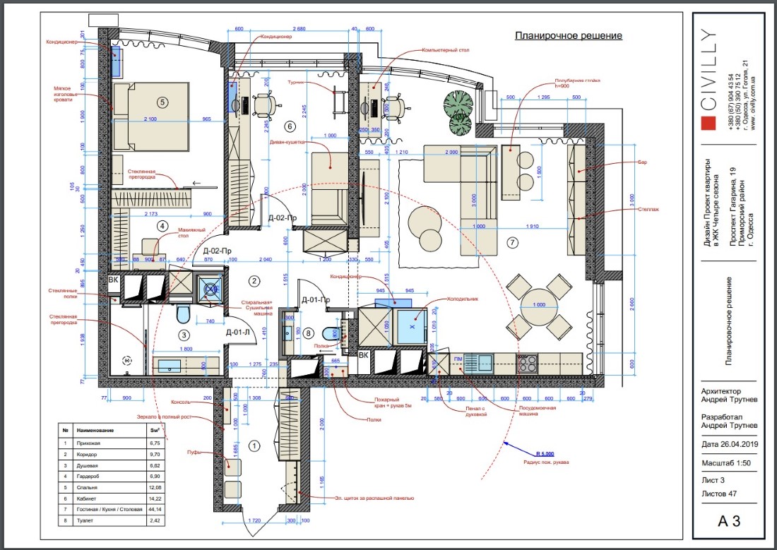
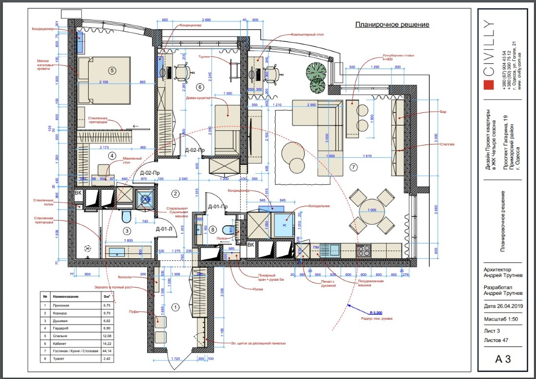
| Скачать пример дизайн-проекта |
Не дайте себя обмануть! Заказывайте дизайн-проект для своего нового жилья лишь у профессионалов, изучайте портфолио специалистов. Постарайтесь найти возможность увидеть в живую реализованные ими проекты и убедиться, что это действительно их работа, и что сделана она качественно.

Помните, что всегда найдется тот, кто возьмется сделать дешевле, вопрос в том не «выбросите ли вы деньги на ветер».
И еще… Помните, что квартира или дом с хорошим дизайном будет дарить вам и вашей семье положительные эмоции и наполнять энергией многие годы или даже десятилетия. Вы этого заслуживаете.

Всю подробную информацию о том, что такое «Дизайн-проект», а так же много интересного и полезного про дизайн ты можешь найти на нашем You Tube канале: www.youtube.com/channel/UCwKwtyLVScwf33bARwJQKgg
Закажите качественный дизайн интерьера в Одессе.
Понравился наш проект?
Нажми на иконку и поделись этой страницей в социальных сетях:
Как создать успешный бизнес в HORECA? Роль концепции и мудборда в разработке дизайн-проекта ресторана или кафе.
-Размышления ИИ на тему: Нейросети в дизайне интерьера: останутся ли архитекторы и дизайнеры без работы?





Автор статьи: Павел Иванов







