Электрика – один из самых сложных вопросов для тех, кто планирует строительство или модернизацию жилья: будь то небольшой ремонт квартиры в Одессе или масштабный ремонт квартир под ключ в Киеве в новостройке. Что уже говорить про такие сложные задачи, как строительство дома в Одессе или строительство дома в Киеве. Ведь мало кто из нас, обычных людей, в электрике разбирается настолько, чтобы иметь возможность принимать обдуманные, грамотные решения. Поэтому сегодня мы поговорим о том, как выбрать подрядчика по электромонтажу для своей новой квартиры, как не дать себя обмануть и на что стоит обратить особое внимание. А также дадим несколько полезных советов, которые помогут реализовать эту часть дизайн-проекта вашего нового жилья.
Для начала хотелось бы сказать, что теме любых сетей и коммуникаций в квартире или доме, будь то электричество, отопление, кондиционирование, вентиляция, водоснабжение или канализация, всегда стоит уделять максимум внимания. Это то, что вы делаете раз и навсегда, на весь срок эксплуатации квартиры или дома, поэтому здесь не стоит экономить или пускать все на самотек. Вопрос электросетей, как правило, является одним из самых сложных. И сегодня мы постараемся максимально его раскрыть.
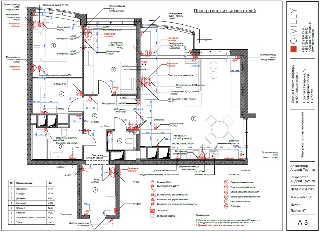
Дизайн-проект интерьера и планирование электросети
Электрику очень сложно делать работу без дизайн-проекта, так как план электросети обычно рисуется после того, как согласовывается окончательный план расстановки мебели и бытовой техники. Даже если вы не собираетесь покупать все и сразу, нужно предположить, где будет находиться та или иная техника и бытовые приборы, которым нужны будут розетки, а также, в зависимости от расстановки мебели, продумать освещение и расположение выключателей.
Дизайн-проект квартиры в Одессе: размещение светильников, розеток и выключателей зависит от расстановки мебели
Поэтому при разработке дизайн-проекта сначала создается визуализация интерьера со всеми объектами и освещением, и лишь затем начинаются работы по планированию электросети.
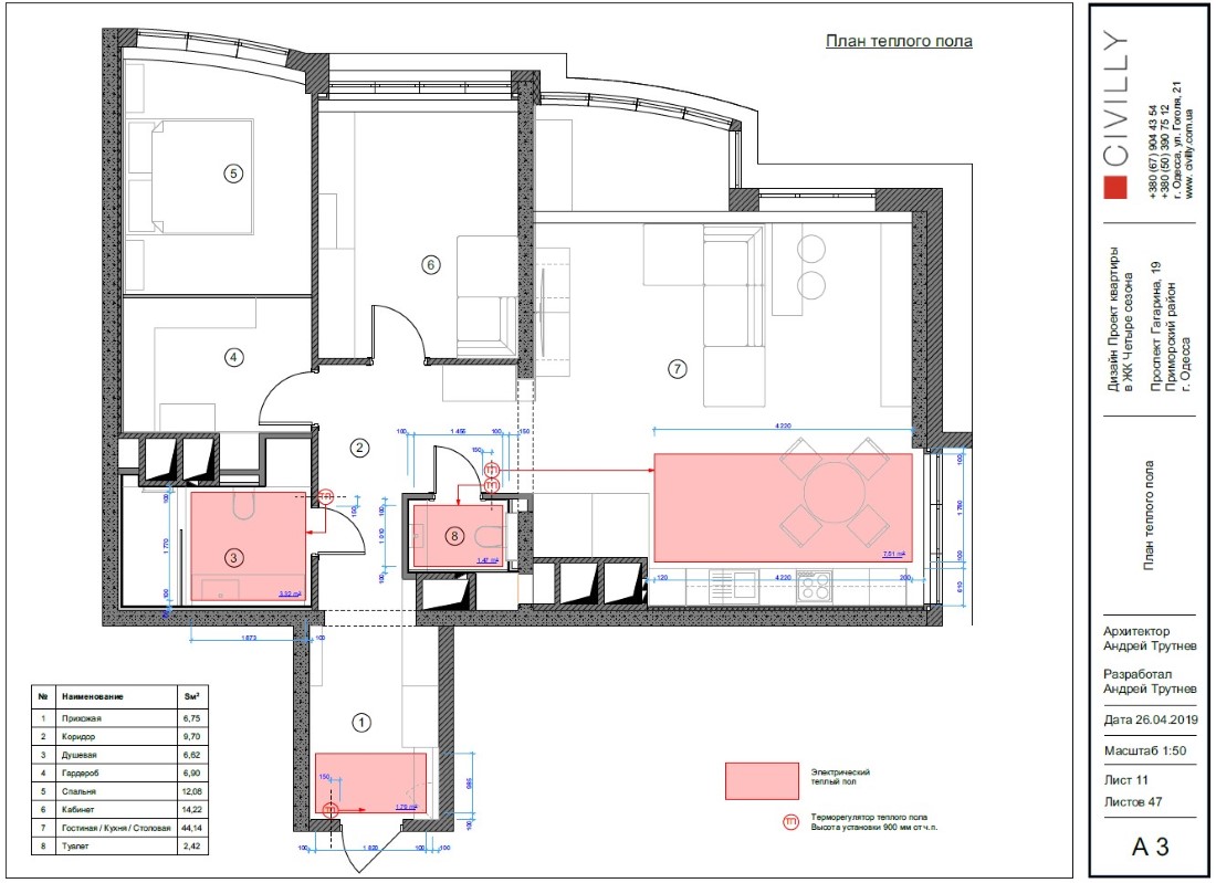
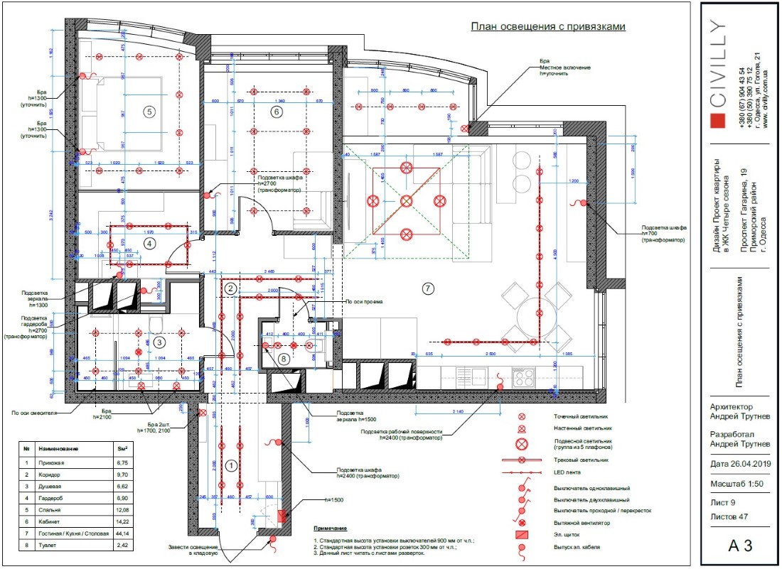
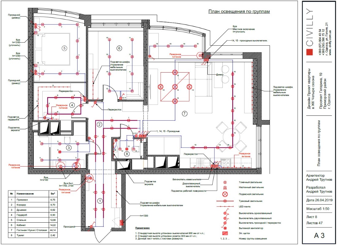
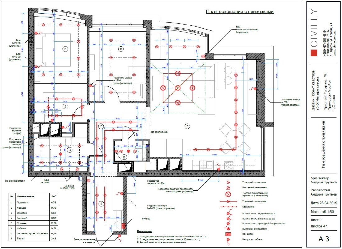
Здесь разрабатываются чертежи: план расположения абсолютно всех источников света в квартире (объединенных по группам) и выключателей (также по группам светильников, которыми они управляют); план привязки точек освещения для электриков, которые будут прокладывать проводку; план абсолютно всех розеток, включая силовые и слаботочные, розетки (под интернет, телевидение, оптоволокно и т.д.).
Все эти чертежи вам нужно будет передать электрику, и он уже создает свой эскиз, в котором планирует, где будет прокладывать провода, рассчитывает количество кабелей, необходимых для вашей квартиры, планирует, где и какие кабели будут необходимы. В зависимости от этого специалист считает стоимость необходимых материалов и работ, после чего он может предоставить вам смету на монтаж электросети в вашей квартире.
Как выбрать подрядчика по электрике?
Мы советуем отнестись к этому вопросу со всей внимательностью и хотим выделить два, по нашему мнению, самых важных критерия: профессионализм и подход к работе и портфолио специалиста. Убедитесь, что у вашего электрика есть соответствующее образование и допуск. При этом желательно не только посмотреть фото готовых объектов, которые делал подрядчик, а и увидеть их вживую на стадии, пока не заделаны штробы.
Как оценить профессионализм электрика? По качеству сметы и дополнительных вопросов, которые он задаст.
Когда вы предоставите специалисту чертежи, у него наверняка появятся к вам дополнительные вопросы, и их будет немало. После их обсуждения, спустя несколько дней, электрик должен предоставить вам смету на работы и материалы, которые потребуются для монтажа электросети в вашей квартире. Конечно же, в этой смете могут быть некоторые допущения, ведь не всегда все идет так, как запланировано. Но по ней сможете ориентироваться и вы, и подрядчик.
Однако есть и вопросы, которые именно вам стоит задать электрику прежде, чем он приступит к работе. С их помощью вы сможете оценить профессионализм электрика и обезопасить себя от некоторых хитростей и уловок, на которые могут идти недобросовестные подрядчики.
■Как формируется стоимость работ?
Дело в том, что сегодня есть немало электриков, которые считают стоимость работ по так называемым точкам. Это не совсем правильный подход, ведь он дает возможность для различных спекуляций и разного трактования этих самых «точек». Например, блок из четырех розеток может считаться одной или четырьмя точками (как правило – как захочет подрядчик). На самом же деле, если рассматривать, например, модуль из 4х розеток, то его некорректно считать, как 4 точки. Ведь к нему подходит только один провод, специалист штробил стену или делал протяжку кабеля один раз, и эти трудозатраты больше соотносимы с одной точкой, но никак не четырьмя. Поэтому такие вопросы нужно оговаривать сразу.
То же касается и встраиваемых светильников, которые располагаются группами. Кто-то может сказать вам, что это несколько точек. Но на самом деле трудозатраты на них не равнозначны проведению каждого отдельного светильника.
Дизайн квартиры в Киеве: светильники на треке, интегрированном в потолок
Для сравнения, в нашей компании мы оцениваем такую работу более дифференцированно: по прайсу вы сможете ознакомиться с ценами на различные виды работ и посчитать, сколько будет стоить монтаж электрики в вашем конкретном случае, не привязываясь к количеству точек, а ориентируясь на реальные и однозначные цифры.
■Как подрядчик планирует делать разводку электрики (принципиальная схема)?
Многие электрики даже сегодня пытаются сделать разводку по квартире так, как это делалось в Советском Союзе: в каждой комнате была доза (закрытая пластиковая коробка, которая закрашивалась или заклеивалась обоями), и от нее шла разводка электрики по комнате. В нашем ХIХ веке этот подход не совсем корректный, ведь по сравнению с современными технологиями у него есть значительные недостатки.
Во-первых, мы считаем, что все розетки должны быть сведены УЗО в щите (специальные автоматы - устройства защитного отключения). При этом эти розетки нужно группировать по отдельным блокам на разные УЗО (в зависимости от расположения, мощности и т.д.). Это даст возможность в случае чего обезопасить себя от отключения электричества по всей квартире – перестанет работать лишь отдельный блок. УЗО реагируют на сопротивление человеческого тела. И если, например, ребенок все же «сунет пальцы в розетку», его хоть и ударит неприятно током, но не травмирует и не приведет к летальному исходу – УЗО защищает от таких несчастных случаев.
Во-вторых, как бы вы ни пытались скрыть дозы в интерьере, эти неприглядные коробки все же будет видно.
В-третьих, чем меньше у вас соединений проводов (скруток, спаек и т.д.), тем более безопасной будет электросеть в вашей квартире.
■С каким именно кабелем собирается работать электрик?
Узнать об этом стоит еще до начала работ, а еще лучше, если он покажет вам образец кабеля. Это важно, так как некоторые недобросовестные продавцы торгуют так называемыми «кабелями усеченного диаметра». То есть, на кабеле пишется, что его сечение 1,5 кв. мм, а реальная площадь сечения 0,8 кв. мм. Это обман – кабель может не выдержать нагрузки и воспламениться. В нем меньше меди – вот почему такой кабель дешевле. И скорее всего, этот кабель приехал к нам из далекого Китая, один бог знает, какое качество его изоляции. Поэтому посмотрите на кабель, с которым электрик собирается работать, а также узнайте его цену и перепроверьте в интернете по артикулу производителя и характеристики.
■Будет ли использоваться гофрированная труба?
Гофротруба выполняет две функции: пожарная безопасность (в случае возгорания кабеля она блокирует доступ кислорода к источнику воспламенения) и практичность (в случае повреждения провода вам будет намного проще его заменить, протащив через эту же гофру).
Допускается протяжка проводов, как в гофрированной трубе, так и без нее, но тогда разрешено использовать лишь негорючий кабель с соответствующей маркировкой (НГ). И в этом случае вы будете лишены возможности (которую обеспечивает гофротруба) легко и быстро заменить поврежденный кабель на новый.
■Когда подрядчик планирует делать разводку электрики (последовательность процессов)?
Некоторые «специалисты» делают разводку перед процессом штукатурки стен. Они аргументируют это тем, что не нужно будет штробить готовые стены, а лучше сначала проложить провода, оставить их, а затем уже штукатурить стены. Мы отказались от такого подхода на заре рождения нашей компании 15 лет назад, так как он, по нашему мнению, непрофессиональный.
Представьте себе: электрик провесил кабель по стене и пока так и оставил (с запасом минимум полметра). Затем пришел работать штукатур – специалист, который не имеет никакого отношения к электрике (он даже может не умеет читать эти разделы чертежей и не будет заглядывать в проект), и заштукатурил этот провод, вытащив провод из стены на какой-нибудь высоте, на глаз, по собственному наитию. В результате провода у вас могут выходить на разной высоте, и штробить поштукатуренную стену все равно придется.
То же касается и подрозетников, которые устанавливаются до того, как стены поштукатурят: никто не может предсказать, какой слой штукатурки потребуется штукатурам, чтобы создать геометрию помещения, поэтому подрозетники могут «утонуть» в слое штукатурки – оказаться глубже, чем нужно, либо наоборот – торчать из стены. После этого их также нужно будет разбивать стену или что-то придумывать, чтобы вывести их на один уровень со стеной. Результат – ненадежное крепление механизмов розеток и выключателей к подрозетнику.
Все это, безусловно, влияет на качество ремонта и его внешний вид. Поэтому мы настоятельно рекомендуем выбирать электрика, который скажет вам, что разводку электрики нужно делать по отштукатуренным стенам, когда четко задана их плоскость и геометрия.
■На что еще важно обратить внимание?
Обсудите со специалистом, как он видит схему электрического щита. Вам действительно стоит постараться вникнуть в этот процесс, согласовать принципиальную схему расключения щита, убедиться в том, что на щите будет достаточное количество автоматических выключателей и предохранителей, что все это будет логично разнесено по группам. Убедитесь в том, что у вашего электрика есть хоть бы среднее специальное образование, он понимает что делает, способен правильно рассчитать нагрузки на автоматы, и они не будут перегреваться.
Проконтролируйте также, чтобы в вашем квартирном электрощите были установлены автоматы, срабатывающие при существенном скачке напряжения – это убережет вас от дорогостоящего ремонта бытовой техники впоследствии. Предусмотрите резервную линию бесперебойного питания от аккумуляторов для жизненно важных приборов квартиры или дома (газовый котел с насосами, роутер, розетка возле кровати и т.д.).
В общем, щит должен выглядеть аккуратно и быть интуитивно понятным. А когда принимаете работу, не поленитесь выключить электричество во всей квартире и лично подергать соединения проводов с автоматическими выключателями на щите, чтобы убедиться в том, что все контакты в нем плотно поджаты (в противном случае это чревато пожаром из-за возгорания щита), как в истории по этой ссылке:
Спросите (посмотрите на чертеже или эскизе, который сделает электрик), где специалист собирается тянуть трассы: в идеале они должны тянуться вертикально вверх от каждой розетки и выключателя, быть выложенными ровно по прямой и упорядоченными геометрично. В противном случае, забивая гвоздь через 5 лет вы рискуете перебить провод в стене и получить поражение электротоком.
Мы крайне не рекомендуем тянуть электрику по полу. Это допустимо лишь в крайних случаях, потому что, если с кабелем что-то случится, отремонтировать стену намного проще и дешевле, чем снимать и заново устанавливать или ремонтировать полы. Кроме того, на полу может быть уложена плитка или паркет; спустя несколько лет вам может понадобиться отремонтировать что-нибудь из электрики, встроенной в пол, а запаса этой плитки нет, и найти ее будет практически невозможно. Со стенами же все намного проще – даже полностью переклеить обои или перекрасить всю стену не так дорого и трудозатратно, как заменить (или разобрать и снова собрать) пол.
Обратите внимание на то, как электрик «сращивает» провода. В идеале таких мест должно быть как можно меньше. А если они есть, провода должны тщательно обжиматься клемными планками или, в идеале, скручиваться и пропаиваться оловом.
Не упустите возможности съездить на объекты, над которыми работал подрядчик, чтобы увидеть его работу своими глазами и убедиться в том, что все сделано аккуратно и качественно.
Обязательно посмотрите, насколько ровно (горизонтально или вертикально) электрики установили подрозетники – оценить это можно с помощью строительного уровня. Также обратите внимание на то, как выполнены отверстия под них – перекроет ли блок с розетками края этих отверстий?
Спросите у нанимаемого подрядчика, делает ли он после монтажа исполнительные схемы. Они необходимы для того, чтобы вы знали, где у вас в квартире проходят провода, когда ремонт будет закончен.
Все вышеперечисленное будет влиять на стоимость монтажа электросети в вашей квартире, и вы должны иметь возможность адекватно оценить комплекс запланированных работ и смету на их выполнение и материалы. Кроме того, помните: ВОСПЛАМЕНЕНИЕ ПРОВОДКИ ЯВЛЯЕТСЯ САМОЙ РАСПРОСТРАНЕННОЙ ПРИЧИНОЙ ПОЖАРОВ! Поэтому устройству электрической сети в квартире стоит уделять огромное внимание. Ведь от нее будет зависеть безопасность вашей семьи, имущества и недвижимости, в которую столько вложено.
Помните: дешево никогда не бывает просто так! Если подрядчик предлагает вам выполнить работы за значительно более низкую стоимость, значит, вас наверняка где-то обманут, что-то сделают недобросовестно, сэкономят там, где позже вы переплатите в разы. В случае с электрификацией квартиры, так экспериментировать ни в коем случае не стоит!
Кредо нашей компании – высокое качество по разумной цене. Заказывайте монтаж электрики, а также других инженерных сетей квартиры или дома в компании Civilly –вы и ваша семья будет спать спокойно!
Понравился наш проект?
Нажми на иконку и поделись этой страницей в социальных сетях:
Как создать успешный бизнес в HORECA? Роль концепции и мудборда в разработке дизайн-проекта ресторана или кафе.
-Размышления ИИ на тему: Нейросети в дизайне интерьера: останутся ли архитекторы и дизайнеры без работы?





Автор статьи: Павел Иванов







