Планирование земельного участка вокруг будущего отеля — один из первоочередных вопросов, который нужно рассматривать в комплексе с планированием самого здания и его инфраструктуры. Основная задача проектантов — создать не просто отельный комплекс, а успешный бизнес для заказчика. Именно от решений, которые будут приняты на этапе планирования, зависит прибыльность будущего отеля.
В этой статье мы расскажем об основных этапах планирования земельного участка и на реальных примерах разберем некоторые аспекты, которые стоит учесть.
Этапы планирования земельного участка
Одной из основных задач на данном этапе является определение необходимых площадей и объема застройки исходя из технического задания, градостроительных условий и ограничений по участку либо инфраструктуре - как рекреационной, так и технической. Очень важна и логистика комплекса, конечно же, выполненная с учетом всех норм и правил.
При планировании необходимо "выжать" из участка максимум и разместить всю будущую инфраструктуру отеля с учетом перспективы развития бизнеса хотя бы на 10 лет вперед.
На первом этапе очень важно определить, к какому классу последствий будет относиться проектируемый комплекс - незначительному классу последствий (СС1), среднему классу последствий (СС2) или значительному классу последствий (СС3). Это зависит в основном от площади, этажности и количества человек, которые постоянно либо периодически будут пребывать на объекте, а также снаружи в непосредственной близости к нему. Чем выше присвоенный класс последствий, тем выше требования, которые предъявляют к объекту государственные нормы и правила касательно надежности, конструктивной и пожарной безопасности. А соответственно, будут выше проектная и сметная стоимость отельного комплекса, как и временные затраты на реализацию проекта. Поэтому, как правило, все инвесторы стремятся оптимизировать бюджет реализации объекта путем присвоения более низкого класса (если это возможно), что требует меньшего количества процедур, а значит, меньше времени и бюджетов. Условно говоря, выгоднее запроектировать и реализовать 2-3 отдельных корпуса апартаментов (которые попадают в класс последствий СС1), чем 1 большой корпус отеля такой же вместимости, который попадает в класс СС2.
С учетом вышесказанного, совместно с заказчиком обсуждается, уточняется и подписывается техническое задание, на основании которого реализуются первые стадии проектирования - эскизный проект и градостроительный расчет.
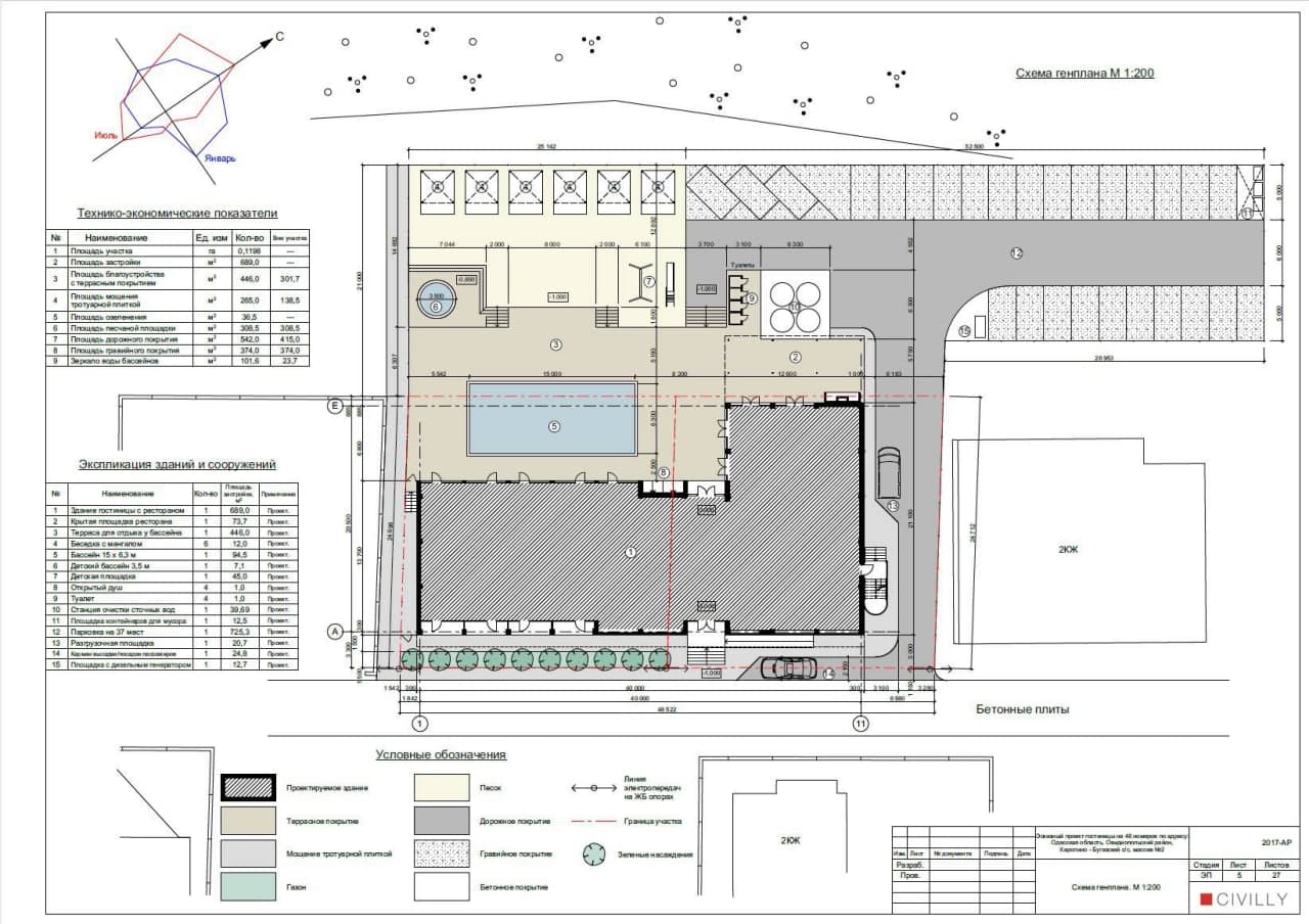
Первый шаг в разработке эскизного проекта - формирование схемы генерального плана. Именно на этой стадии здание (или комплекс зданий) "сажают" на участок, специалисты прорабатывают различные варианты планировок, а также закладывают приблизительные желаемые и допустимые для выбранного класса последствий технико-экономические показатели и характеристики отеля (этажность, количество номеров, зонирование, инфраструктура, назначение и площади МОП (мест общего пользования) и т.д.).
Схема генплана отеля, Каролино-Бугаз - СТАДИЯ ЭСКИЗНЫЙ ПРОЕКТ
В эскизном проекте описаны укрупненные показатели, пока без детальной проработки. Так, например, условными зонами могут быть обозначены бассейн, очистные сооружения, станция биологической очистки сточных вод. На следующем этапе, во время и по мере разработки рабочего проекта, все их параметры и размеры будут детализированы и уточнены. Чем профессиональнее и опытнее архитектурная компания, которая разрабатывает эскизный проект, тем больше деталей и технических данных будет учтено на этой стадии, тем меньше различий будет между эскизным и рабочим проектом впоследствии.
Схема генплана отеля, Каролино-Бугаз - СТАДИЯ РАБОЧИЙ ПРОЕКТ
На основании утвержденных планировок выполняются эскизные трехмерные визуализации, архитекторы задают внешний вид отеля, после чего разрабатывается комплект чертежей эскизного проекта.
Пример трехмерной визуализации отеля
На основании согласованного с заказчиком эскизного проекта оформляется градостроительный расчет - документ, который, кроме графической части, содержит информацию о количественных показателях проектируемого отеля. Его передают местным властям и профильным организациям для выдачи условий и ограничений, разрешений на проектирование и в дальнейшем на строительство.
Градостроительный расчет позволяет рассчитать приблизительный бизнес-план, проанализировать эффективность и понять срок “окупаемости” отеля.
Иногда, по желанию инвестора, проектанты могут разработать форэскизный проект, то есть более упрощенный "эскизник". Он используется для очень примерной оценки инвестиционной привлекательности проекта, для того, чтобы понять, стоит ли вообще вкладывать средства даже в проектирование.
Финальным этапом проектирования является рабочий проект. Генеральный план территории в рабочем проекте гораздо более детальный, он выполняется с учетом детальных проектов всех инфраструктурных решений. То есть мы уже понимаем реальные размеры и размещение трансформаторной подстанции, генераторной, бассейна, летнего бара, мангальной зоны, беседок и т.д.
Какой должна быть инфраструктура “правильного” отеля, от чего это зависит?
Прежде всего - от того, насколько гостю будет комфортно отдыхать, а собственнику - получать максимум прибыли при минимальных затратах! Для гостей отель начинается с хорошего подъезда к объекту. Соответственно, нужно продумать удобный заезд как для людей, которые приедут на легковом автомобиле, так и для группы туристов, которую могут привезти на автобусе. Подъезд к отелю должен соответствовать противопожарным нормам. Также необходимо обеспечить место для паркинга автомобилей. Казалось бы, парковка занимает значительную площадь участка, и, по сути, ничего, кроме машин, там мы разместить не можем. Но опытные специалисты смогут оптимизировать пространство. Например, специалисты компании Civilly при проектировании отеля в Затоке под паркингом предусмотрели размещение станции приема сточных вод — резервуаров, в которые собираются канализационные отходы из гостиницы. Там же установлены насосные станции, которые качают все эти стоки в канализацию поселка, где расположен этот отель.
Пример оптимизации пространства в отеле “Zatoka De Luxe”
Кроме того, для удобства гостей и эксплуатационных служб мы обеспечили круговой проезд по территории отеля.
Схема зонирования территории разработанная специалистами компании Civilly
Чтобы обеспечить отель в 55 номеров электричеством при пиковой загрузке в сезон, необходимо 200-250 кВт или больше на весь комплекс. Сети, к которым нужно подключить отель, в локации не готовы к таким дополнительным нагрузкам. Из-за этого возникла необходимость в собственной трансформаторной подстанции, а также генераторной, на случай отключения электричества. При работе эти системы издают шум, поэтому их максимально отодвинули от жилых корпусов.
Что касается инфраструктуры отеля, то, если мы хотим обеспечить хорошую его наполняемость, конечно же, нужны бассейн, бар, летняя кухня, СПА, мангальные зоны. Это все необходимо для того, чтобы гости могли получить полный комплекс услуг на территории отеля.
Ну и самое главное: нужно не только все это вместить, но и обеспечить лучшие виды изо всех номеров с учетом местности, в которой находится отель, что мы и сделали. Вдоль одного из корпусов проходит шумная общественная аллея - в планировочных решениях мы минимизировали количество окон, которые выходят на эту аллею.
В другом отеле, который запроектировали наши специалисты, "Coral INN", расположенном на второй линии от моря в курортном районе, здание имеет Г-образную форму.
Одна сторона полностью выходит на море. На первом этаже у нас ресепшн, с которого открывается вид на дорогу и другие здания первой линии. Со второго, третьего и четвертого этажа гости смогут видеть море.
Пример зонирования участка отеля "Coral INN"
Если бы мы не продумали инфраструктуру, то гости, которые поселились с другой стороны здания, смотрели бы на пустырь. На плане видно, что мы там разместили бассейн.
Но нужно понимать, что возле бассейна всегда шумно. Соответственно, сторона, которая выходит на бассейн — это номера, которые будут продаваться немного дешевле, но все равно из них открывается хороший вид.
Очень важно думать о будущем. Если мы понимаем, что у нас строительство будет идти очередями, нужно сразу продумать вторую, третью очередь. Надо делать один общий генплан, который будет реализовываться даже через 5-10 лет.
Основные факторы планирования земельного участка
Необходимо правильно проанализировать локацию, чтобы понимать исходные данные. Где у нас хороший вид? Где вида нет? Где шумная аллея, которая будет мешать? Где север — не будет ли бассейн в тени?
Самый важный фактор заключается в том, чтобы в конкретной локации, с учетом всей необходимой инфраструктуры, найти оптимальную посадку здания. Это обеспечит хороший вид из максимального количества номеров и ликвидность номерного фонда.
То есть правильно спроектированный отель должен приносить максимальную прибыль инвестору. Это самая главная и непростая задача, справиться с которой могут только профессиональные архитекторы, понимающие особенности отельного бизнеса. В идеале они должны решать эти задачи совместно с управляющей компанией, которая будет эксплуатировать комплекс. Именно так и работает наша компания.
Понравился наш проект?
Нажми на иконку и поделись этой страницей в социальных сетях:
Как создать успешный бизнес в HORECA? Роль концепции и мудборда в разработке дизайн-проекта ресторана или кафе.
-Размышления ИИ на тему: Нейросети в дизайне интерьера: останутся ли архитекторы и дизайнеры без работы?





Автор статьи: Павел Иванов







