В основі гарного дизайну інтер'єру апартаментів завжди лежить ретельно опрацьоване планувальне рішення. Планування визначає функціональність і комфорт протягом багатьох років - до наступного капітального ремонту. Перед нами стояло непросте завдання: організувати в апартаментах площею 65 квадратних метрів стильний повнофункціональний простір з двома спальнями. Читайте і дивіться, як ми впоралися!
Ці апартаменти розташовані в житловому комплексі "COSTA FONTANA" на 13 станції Великого фонтана в парковій зоні, безпосередньо біля моря на першій лінії. Усі вікна мають прямий вид на море.

КОСТА ФОНТАНА (COSTA FONTANA) - житловий комплекс у курортній зоні Одеси, розташований серед готелів і санаторіїв. Три будинки зі спільною внутрішньою територією побудовані в одному стилі й оформлені як морські хвилі. Комплекс стоїть на першій лінії, тому ближче до моря тільки сам пляж. В апартаментах Costa Fontana панорамні вікна на всю висоту поверху і балкони з видом на відкрите море, тому щовечора мешканці матимуть вид на приголомшливий схід сонця над морем. Таким приголомшливим краєвидом можуть похвалитися лише розташовані поруч розташовані комплекси апартаментів "Каліпсо" і "Граф біля моря", котеджне селище "Золотий Берег".
Тож, головна ідея нашого дизайн-проєкту: мешканці мають насолоджуватися цим краєвидом упродовж дня якомога довше, як це вдалося реалізувати нашим архітекторам і дизайнерам інтер'єру - читайте далі.
.jpg)
Планування цієї квартири розроблено для сім'ї з чотирьох осіб, яка приїжджає сюди на кілька місяців літа відпочити біля моря. Класичні "апартаменти для відпустки" і всі планувальні рішення мають бути підпорядковані такому цільовому призначенню.
Завдання досить складне і ємне: площа квартири - всього 65 кв.м. У цей простір потрібно було вмістити 2 спальні, хазяйську і гостьову, так щоб усій родині було комфортно. Плюс, можливо, додаткові місця для гостей. Тобто, завдання №1 - велика місткість (ємність) квартири.
Крім того, замовник не виключає, що в майбутньому буде віддавати апартаменти в управління і здавати. А це означає, що меблі в апартаментах мають бути мультифункціональними. Наприклад, для подобової або потижневої оренди (у високий сезон) ліжка мають бути готовими "розсунутися", так щоб у кімнаті могли відпочивати й ті, хто не пов'язаний романтичними стосунками. А щоб успішно здаватися на тривалий термін у низький сезон, головними факторами будуть кількість і місткість місць зберігання, зручність зон, які забезпечують побутові потреби, наповнення вбудованою технікою.
.jpg)
Планування спальні виконано, як готельний номер "твін" - 2 односпальні ліжка можуть зсуватися.
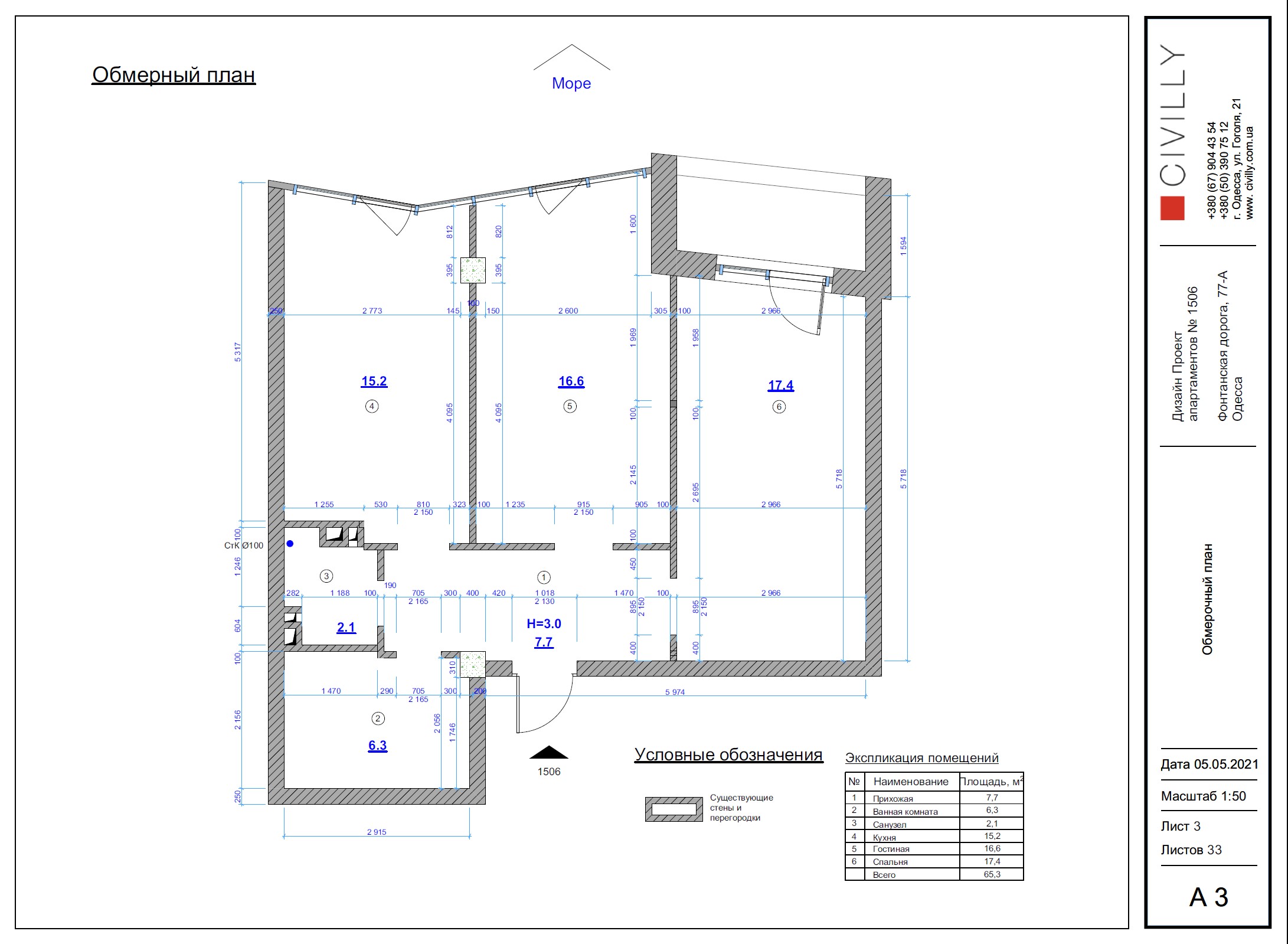
Спочатку кілька слів про запропоноване забудовником планування. Воно не надто погане, але, як часто буває, є безліч недоліків.

Планування апартаментів "Коста Фонтана" в Одесі від забудовника
Перше, що звертає на себе увагу - 2 санвузли. За початковим проєктом у квартирі мало бути три приміщення, крайнє ліве, судячи з комунікацій, - це кухня. Якщо віддати 2 кімнати, що залишилися, під спальні - простору для життя, тобто вітальні, їдальні, місця, де не сплять і не готують, не залишається зовсім. Можна було зробити кухню-студію. Вийшло б непогано, але як при цьому виділити ще одну спальню?

Наш аналіз планування апартаментів
Давайте також звернемо увагу на коридор - у запропонованому забудовником плануванні він є паразитним простором, у який навіть шафу не запхнеш. У підсумку ми б отримали квартиру з великою кухнею-студією і однією спальнею. Питання: навіщо в такій "квартирі для двох" два санвузли (приміщення 2 і 3) і при цьому відсутні нормальні місця для зберігання?
Тепер про те, що запропонували архітектори та дизайнери інтер'єру CIVILLY.
За цією хронологією варіантів і планувань можна простежити еволюцію роботи нашої команди. Спочатку архітектор робить кілька базових пропозицій, потім на зустрічі із замовником обираємо найбільш функціональну і працюємо з нею.
Не всі проміжні планування вдалі. Але в процесі роботи - це той самий негативний результат, який теж результат. На їхньому прикладі і ми, і замовник бачимо і розуміємо, як точно не можна. У підсумку - відкидаємо невдалі варіанти, робимо підваріанти для кращого планування апартаментів, обговорюємо, доводимо його до досконалості.

Один із перших варіантів планування апартаментів у ЖК Коста Фонтана
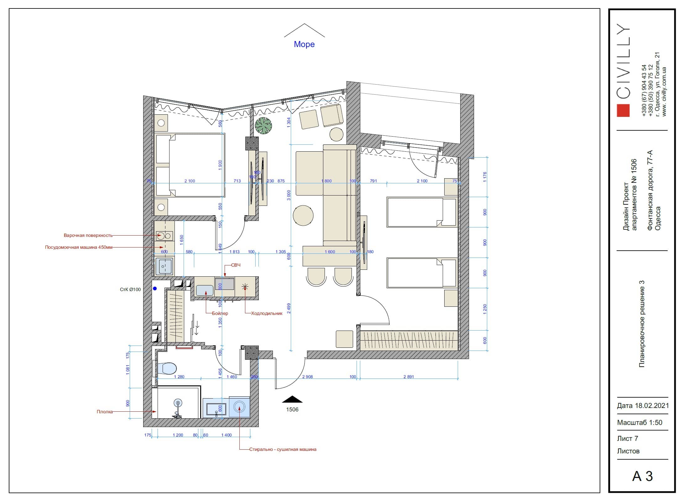
Ось приклад одного з перших варіантів планування. Він непоганий, але має певні недоліки: недостатньо місць для зберігання, особливо в лівій спальні, зона приймання їжі розташована в глибині квартири і являє собою по суті барну стійку на 2 посадочні місця. Також, у лівій спальні поміщається лише двоспальне ліжко, отже - саме це приміщення є майстер-спальнею, тоді нелогічно, що дитяча (або гостьова) спальня є більшою... Ми аналізуємо цей варіант і бачимо, що не можемо збільшити ліву спальню... Потрібно шукати інші варіанти!

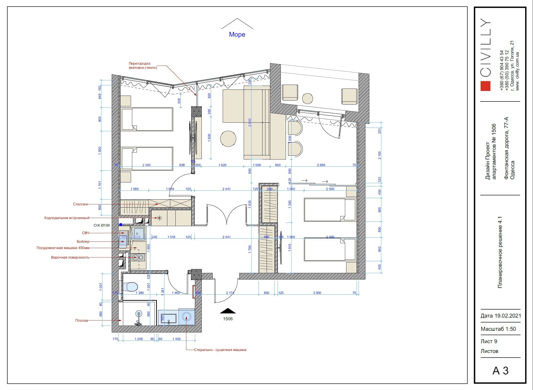
Один із проміжних варіантів планування апартаментів у ЖК Costa Fontana
Цей варіант уже кращий - у ньому вирішено питання з розміром майстер-спальні та шафою в ній. Ми припустили, що гостьову (дитячу) спальню рідко використовуватимуть, і запропонували зробити в ній друге світло і розташувати в глибині квартири, віддавши таким чином панорамне вікно до зони вітальні, адже саме в ній мешканці провидітимуть 90% часу. Ідея сподобалася замовникам, народився новий варіант планування апартаментів.
Це планувальне рішення набагато краще, проте все ще є недоліки - відсутній обідній стіл, дуже велика площа коридору. Будемо працювати далі - збільшувати зону їдальні за рахунок зміни конфігурації гостьової спальні, при цьому збільшимо ширину цієї спальні за рахунок коридору. Дивіться, що вийшло:

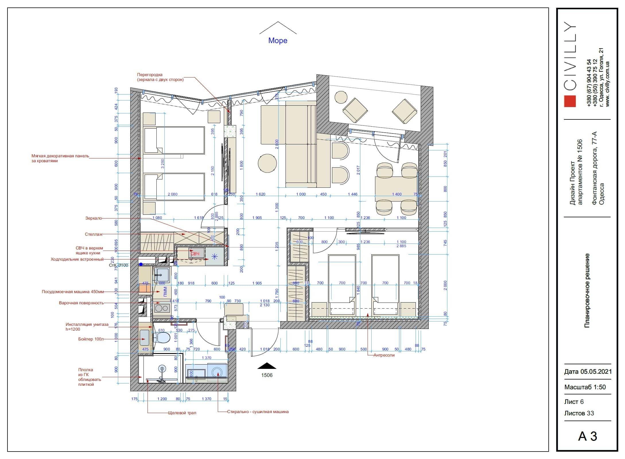
Фінальне планувальне рішення наших апартаментів біля моря
Мінімізовано спальні зони, при цьому є все необхідне. На наш погляд, це логічно. Люди там будуть перебувати тільки вночі і спати. При цьому в майстер-спальні шикарний вид на море з панорамних вікон. Господарі будуть насолоджуватися приголомшливими видами, лежачи в ліжку.
.jpg)
Фокус на вітальню і зону їдальні. Саме тут люди живуть, тобто проводять 90% часу.
.jpg)
Дитяча (або гостьова спальня) у глибині квартири. У зв'язку з невеликою завантаженістю цієї кімнати (10-20%), замовник підтримав нашу ідею, що замість вікон достатньо буде другого світла: на рендерах видно двоє дверей і вікно з матового скла.
.jpg)
Зона кухні мінімізована. Ми виходили з того, що люди на відпочинку з більшим задоволенням сходять до ресторану, ніж проводитимуть дорогоцінний відпускний час біля плити. Кухня розташована в глибині апартаментів, невелика, але з повноцінним функціоналом.
.jpg)
Також мінімізовано зону коридору, тут же встановлено місткі та зручні шафи. Взагалі, за кількістю місць зберігання ці апартаменти можуть конкурувати з повноцінними житловими квартирами.
.jpg)
Хороша функціональність. В апартаментах є практично вся необхідна для комфортного життя побутова техніка: пральна машина, посудомийна машина, мультифункціональна піч із функціями духовки та СВЧ.
Отже, гарне планування затверджено, воно багато в чому визначило наступний етап роботи над проектом інтер'єру - безпосередньо дизайном.
Створення гарного планування квартири або апартаментів - це важливий етап, що вимагає уваги до деталей, ваших потреб і естетичних уподобань. У компанії CIVILLY цим процесом опікується ціла команда спеціалістів із величезним досвідом не лише в галузі дизайну, а й ергономіки. Звертайтеся - до нас ми створимо для вас ідеальний простір з унікальним інтер'єром, який не тільки милуватиме око, а й у якому буде комфортно та зручно жити!
Сподобався наш проект?
Натисніть на іконку і поділися цією сторінкою в соціальних мережах: