Стиль лофт, такий типовий для кафе та ресторанів, не так часто можна зустріти у приміщеннях послуг краси для жінок. І дарма, адже в такому інтер'єрі стільки динаміки та затишку. Цегляні стіни, що перетікають із залу в зал, дарують відчуття спокою та надійності, при цьому їхня унікальна та різноманітна фактура є прекрасним фоном для будь-яких предметів інтер'єру та декору. Текстура дерева додає тепла та затишку, а латунні елементи – яскравості та лиску.
Планувальне рішення для цього салону краси було непростим, оскільки приміщення розташоване у старому будинку в історичному центрі Одеси, при цьому воно не надто велике. Проте бізнес має бути прибутковим – тому перед нами стояло завдання розмістити в невеликому просторі максимальну кількість робочих місць, однак не на шкоду ергономіці та комфорту гостей. При цьому ми були прив'язані до існуючих стояків каналізації, які задавали розташування санвузлів та зон, пов'язаних із «мокрими» процесами. Однак наша компанія робить більше, ніж дизайн інтер'єру (ми називаємо це SMART-дизайн): в одній команді з архітекторами у нас працюють досвідчені інженери, які змогли знайти проєктні рішення для функціонального планування та успішного бізнесу.



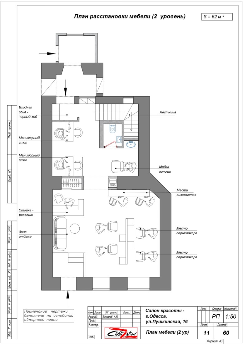
Головний зал зроблений максимально відкритим. У його невеликі габарити органічно вписані стійка ресепшн, зони очікування, гардероб, робочі місця перукарів та візажистів. Високі дзеркала в металевому обрамленні одночасно служать декоративною перегородкою, розділяючи загальний зал на зони, при цьому не зменшуючи простір. Повітряні світильники зі скла розбавляють обстановку, надаючи атмосфері салону краси легкості, яскравості та прозорості. Текстильні дивани-подушки на підвіконнях додають домашнього затишку інтер'єру. Адже гості салону мають отримувати задоволення навіть під час очікування!

Стійка адміністратора розташована навпроти входу, що дозволяє відразу звернути увагу на гостей і приділити кожному належну увагу. Гардероб розташований відразу за спиною в адміністратора, тому одяг клієнтів буде завжди під наглядом – це дає їм відчуття безпеки та спокою за свої речі.

Крісла, стільці візажистів та диван у зоні відпочинку обрані в оббивці з натуральної шкіри для підтримки стилістики «лофт», а також практичності та довговічності в експлуатації.
Зони манікюру та педикюру розташовані в глибині приміщення, що дозволяє клієнтам розслабитися та відволіктися від буденної метушні під час процедури.


У напівпідвальному приміщенні нижнього ярусу організовані масажні кабінети. В даному випадку напівтемні приміщення та приглушене світло бра тільки сприяють релаксації.



Усі прийоми, текстури, матеріали та кольори в сукупності формують невимушену та теплу обстановку, де завжди не лише корисно, а й приємно провести час.
Під час розробки дизайну салону краси в Одесі головною метою для нас було створити настрій затишку та гармонії, місця, куди хочеться повертатися ще і ще. Тому що ми проєктуємо не просто інтер'єр – ми проєктуємо успішний бізнес.