Строительство современного отеля и гостиницы — это выгодное вложение средств в коммерческую недвижимость, ознако, это очень серьезная задача, которая требует профессионального подхода к процессу.
Единый подрядчик - это комплексный подход ко всем этапам строительства, который позволит вам избежать лишних расходов, сократить срок строительства гостиницы и получить надежные гарантии. Мы организуем работу над объектом в соответствии с предпочтениями Заказчика, с использованием только качественных материалов и уникальных идей применением современных технологий и согласно стандартам безопасности.
Для того, чтоб свести все затраты к минимуму, наши специалисты производят точный расчет всех расходов на реализацию проекта и оптимизацию проектных решений. Это позволяет Заказчику сосредоточиться на решении других важнейших вопросов, необходимых чтобы в дальнейшем отель приносил выгоду, а о качестве экстерьера здания и дизайна помещений позаботится компания CIVILLY.
Обратившись к нам, вы сможете, как говорят в Одессе, пройти мимо от всех болей и неприятностей, которые могут сопровождать процесс создания отеля. Мы уже потратили годы на изучение специфики, теории и практики по строительству отелей по всей Украине. Готовы делиться своей экспертностью и опытом.
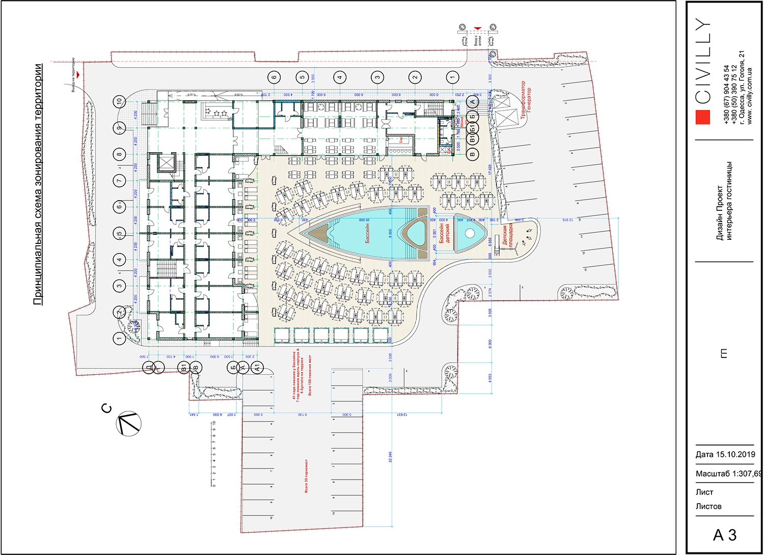
- ЭСКИЗ, ПРОЕКТ, ДИЗАЙН. При отсутствии проекта мы поможем его разработать и воплотить в жизнь. При заключении договора с компанией Civilly над разработкой уникального проекта работают грамотные специалисты, у которых огромный опыт и множество креативных идей способствуют формированию оптимального проектного решения.
- УПРАВЛЕНИЕ ПРОЕКТОМ. В нашей компании вы можете дополнительно воспользоваться услугами профессионального управляющего гостиничным бизнесом, который поможет выполнить маркетинговые исследования, разработать бизнес-план отеля, составить техническое задание на проектирование гостиницы и даже взять отель в управление после его строительства.
- СМЕТЫ И ПЛАНИРОВАНИЕ. Перед началом работ наша компания составляет точную смету по проекту и график выполнения работ. Мы адекватно оцениваем, сколько времени понадобится на выполнение конкретной услуги и при этом скорость не идет в ущерб качеству.
- СОБЛЮДЕНИЕ СРОКОВ. Благодаря детальной проработке каждого из строительных этапов, планированию финансовых расходов, а также установке фиксированных сроков на выполнение работ, Заказчик имеет возможность в полном объеме контролировать весь процесс.
- КАЧЕСТВО. В нашей компании успешно функционирует система контроля качества: при постройке гостиниц и других зданий, а также в процессе их отделки или ремонта мы обязательно сами производим проверку проводимых нами работ, так как несем гарантийные обязательства перед нашими Заказчиками.






































